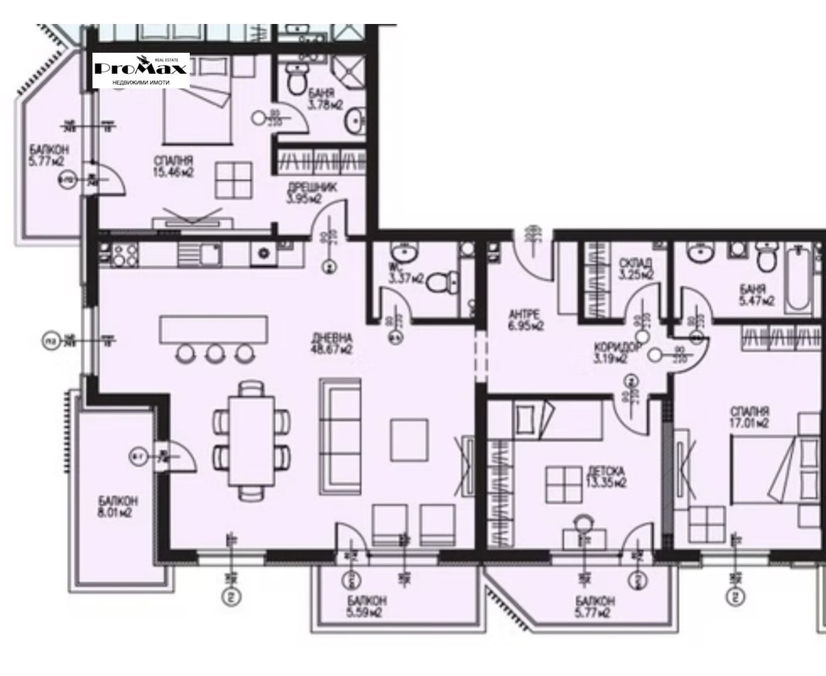
Състои се от:
? Просторна всекидневна с кухня с директен достъп до тераса.
? Три светли спални всяка с балкон.
? 3 Бани + тоалетни
? Удобно антре с място за гардероб.
? Три тераси и склад
?? Качество и комфорт:
Фасада комбинация от луксозен технически камък и мазилка.
Входна врата масивна, блиндирана.
Отопление изградено на газ (без монтиран котел).
Изградена инсталация за климатици.
Фотоволтаици.
Гранитогрес в коридори, камък във фоайето и стълбищата.
Асансьори KONE надеждни и безшумни.
Дограма испанска алуминиева с троен стъклопакет Cortizo.
Парапети на терасите стъкло тип струна.
? Локация в престижен квартал Драгалевци
? Висок клас строителство и материали
? Простор, светлина и гледки към Витоша
? Уютен семеен дом с модерна визия
? Възможност за покупка на гараж
? Свържете се с нас днес, за да запазите оглед!
Не изпускайте възможността да притежавате апартамент в една от най-желаните локации в София. Разполагаме с още апартаменти.
0878565655 Грациела Георгиева
Виж всички обяви в promax2000.bazar.bg или тук
        
       
         
            






