Революшън Естейт Ви представя четиристаен апартамент в нов жилищен комплекс с АКТ 15 в ж.к. Малинова долина.
Локация: В близост до НСА и ул. Тодор Недков
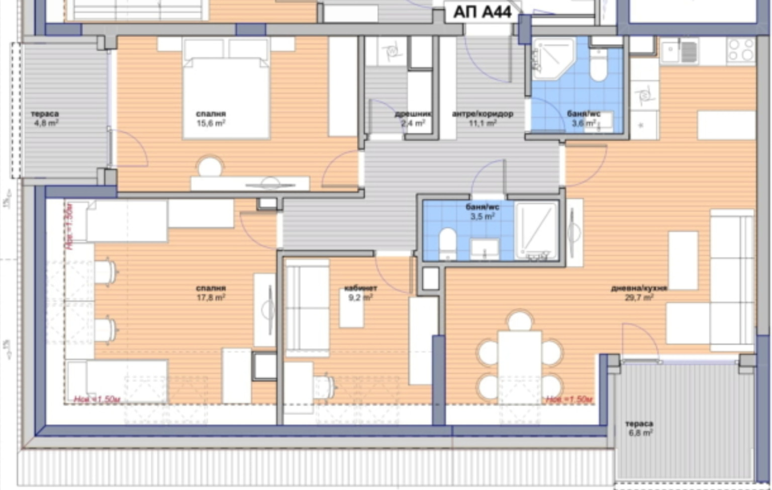
Имотът е разположен на 6-ти етаж.
Площ РЗП 160,33 кв.м. ЗП 130,15 кв.м.
Разпределение: входно антре, всекидневна с кухненски бокс, три спални, две бани с тоалетни и две тераси.
Изложение: Юг / Запад / Изток.
Очаквано завършване: 2026г.
За повече информация не се колебайте да се свържете с нас и да цитирате референтен номер: 7280 в сграда с ID: 293.







