АРТ ХАУС 94 предлага за продажба просторен четиристаен апартамент в затворен жилищен комплекс NOVE HOMES, разположен в квартал Лагера, гр. София.Висок клас строителство, до метро станция КРАСНО СЕЛО.
РАЗПРЕДЕЛЕНИЕ:
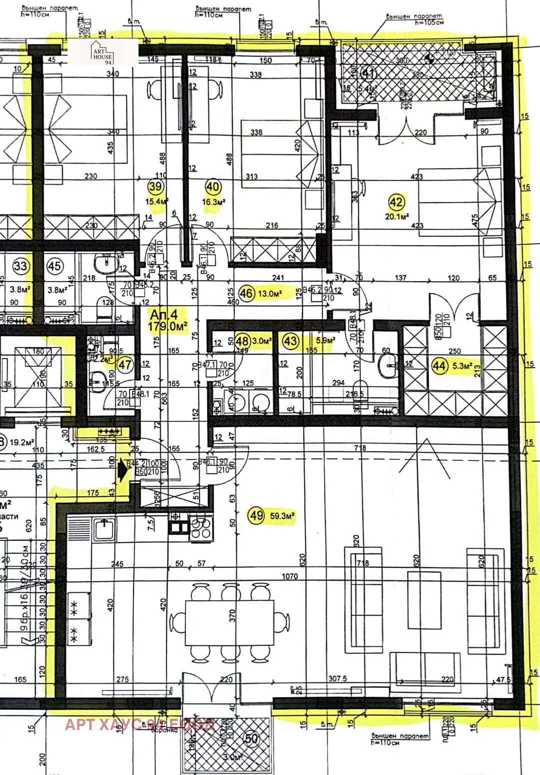
Обща площ по нотариален акт: 217 кв.м (включително идеални части)
Чиста жилищна площ: 179 кв.м
Разпределение (виж архитектурната схема):
Входно антре 13 кв.м
Кухня, дневна и трапезария 59,3 кв.м, с излаз към тераса 3 кв.м
WC 2,2 кв.м
Склад 3 кв.м
Спалня 20,1 кв.м, с излаз към тераса 5,4 кв.м
Самостоятелна баня с WC 5,9 кв.м
Дрешник 5,3 кв.м
Втора спалня 16,3 кв.м
Трета спалня 15,4 кв.м
Втора баня с WC 3,8 кв.м
В близост са разположени:
Кооперативен пазар Красно село;
Магазини, супермаркети;
Училища, детски градини, болници и административни сгради, включително районната община.
Информация за имота:
ново строителство, което позволява адаптиране на разпределението и обзавеждането според вкуса и предпочитанията на собственика,
Акт 16, издаден през април 2025 г.
Намира се в модерна тухлена сграда, част от озеленен комплекс с пространства за отдих
Предлага се на гипсова шпаrкловка и циментова замазка
Изложение: изток юг
Апартаментът включва идеални части от правото на строеж, вписани в нотариалния акт.
Допълнителни помещения:
Две мазета с обща площ от 4,8 кв.м (включени в цената, но извън общата площ на апартамента)
Гаражи:
Две подземни паркоместа, всяко по 13,6 кв.м, се предлагат допълнително на цена от 60 000 евро за паркомясто.
АРТ ХАУС 94 предлага безплатна консултация и съдействие при отпускане на кредит.
Разполагаме с ключ за огледи.
📞 За контакт: 0887 803 064 Геновева







