ДИРЕКТНО ОТ ИНВЕСТИТОР! Строителна фирма Хоум Варна ЕООД продава апартаменти и паркоместа в жилищна сграда с модерна визия, разполагаща с 29 панорамни апартамента в местност Пчелина, в непосредствена близост до кв. Възраждане III. На четири жилищни етажа са разположени 20 двустайни, 7 тристайни и 2 четиристайни апартамента. На разположение на живущите са 16 подземни и 27 дворни паркоместа. Отличен достъп, улично осветление, тих и спокоен район. Сградата е разположена в близост до основна пътна артерия, което я прави лесно достъпна и само на 10 минути път от центъра на града. Етапи на завършване: Сградата е с подписан Акт 14 на 4 април 2025 г., Акт 15: до края на 2025 г., въвеждане в експлоатация март - април 2026 г. БЕЗ ТАКСА ПОДДРЪЖКА.
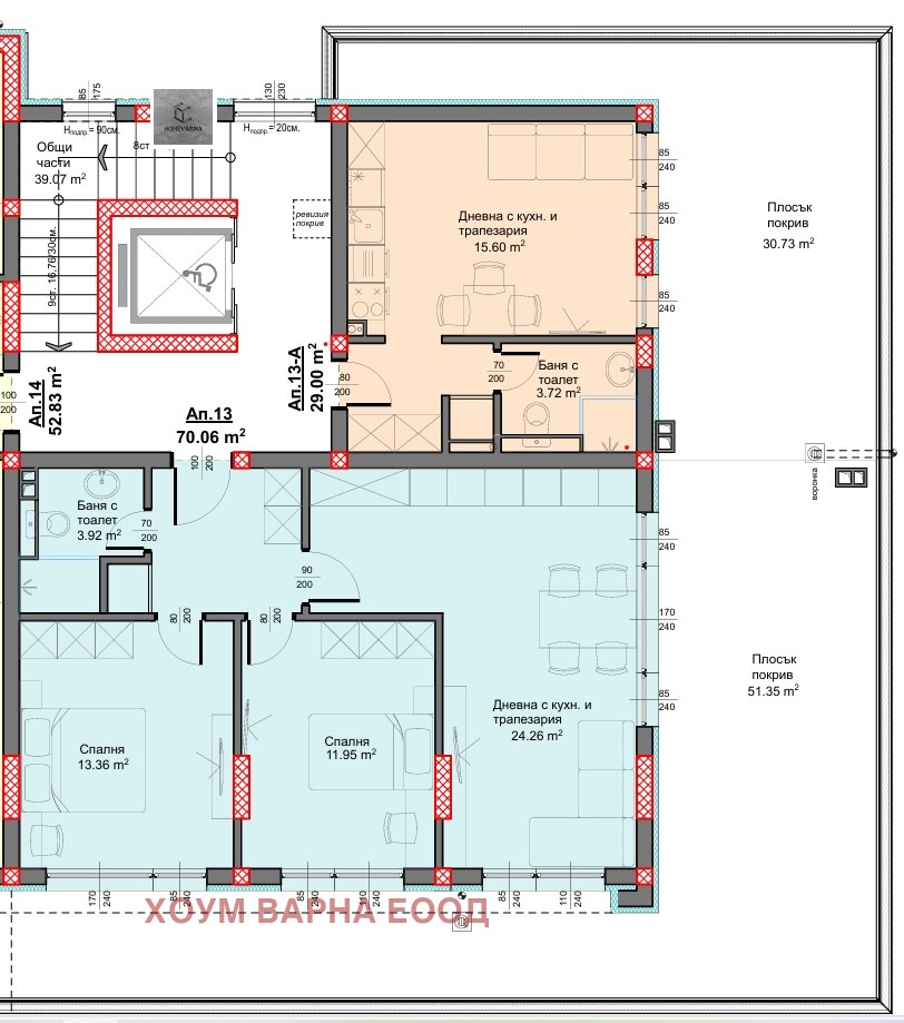
Просторен четиристаен апартамент с покривна тераса С ВЪЗМОЖНОСТ ЗА ПРЕУСТРОЙСТВО!
Апартамент А-13, ет. 4 с обща площ 197,71 кв.м. Състои от 3 спални, дневна с кухненски бокс и трапезария, 2 бани с тоалет, килер, коридор и покривна тераса. Имотът е с 99,06 кв.м чиста жилищна площ и 16,57 кв.м общи части, като към него е включена и покривна тераса с квадратура 82,08 кв.м. Благодарение на функционалното разпределение и наличието на два санитарни възела, апартаментът позволява лесно преустройство в два самостоятелни жилищни имота тристаен и едностаен. Това го прави отличен избор както за две домакинства, така и за инвеститори, търсещи доход от наем.
Съдействие за кредит. За повече информация: https://homevarna.bg/building/green-space-2/.







