✨ Етаж: 6 от 9
🔥 Отопление: ТЕЦ
📜 Статус: ПРЕД Акт 14
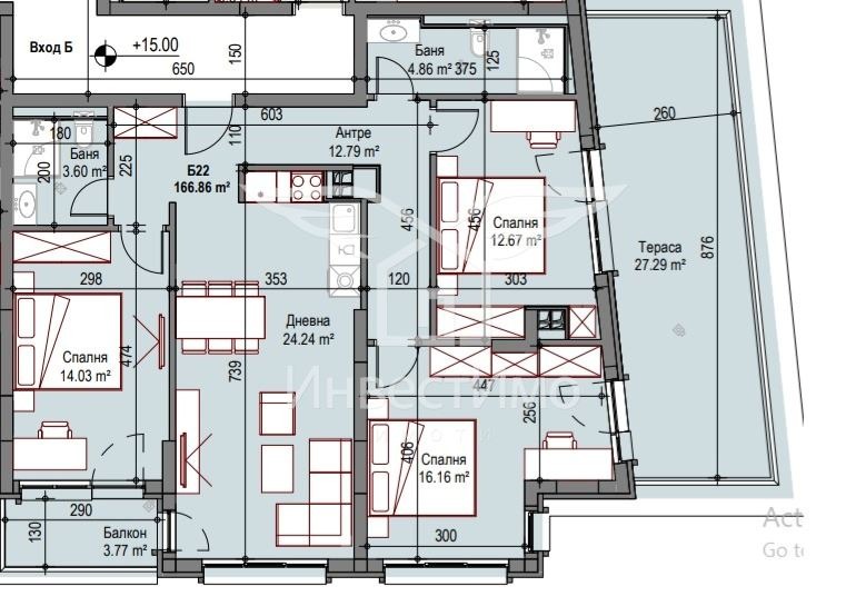
📐 Обща площ: 166.86 кв.м.
✅ Разпределение на имота:
Просторна дневна 24.24 кв.м. (възможност за отделяне на удобна кухня и трапезария)
Три самостоятелни спални 14.03 кв.м., 16.16 кв.м. и 12.67 кв.м.
Две бани с тоалетни 4.86 кв.м. и 3.06 кв.м.
Широко антре 12.79 кв.м.
Голяма тераса 27.29 кв.м. идеална за барбекю и зона за релакс
Балкон 3.77 кв.м.
✅ Разбивка на площите:
Чиста застроена площ: 87.81 кв.м.
Тераса + Балкон: 31.06 кв.м.
Общи части: 47.99 кв.м.
🚗 Допълнителни опции:
Възможност за закупуване на гараж или паркомясто 25 000 50 000 евро (според избора).
📍 Локация:
Сградата се намира в един от бързоразвиващите се квартали на София Суха река, отличаващ се с добра инфраструктура, удобен достъп до центъра и спокойна жилищна среда.
🤝 Какво предлагаме:
Работим с колеги по всички оферти, за да предложим най-добрите възможности на нашите клиенти.
Съдействаме при всякакъв вид кредитиране !
📞 Свържете се с нас още днес:0877 133 788
КОД НА ОБЯВАТА:SR003
Виж всички обяви в investimo23.bazar.bg или тук
        
       
         
         
         
             
             
            






