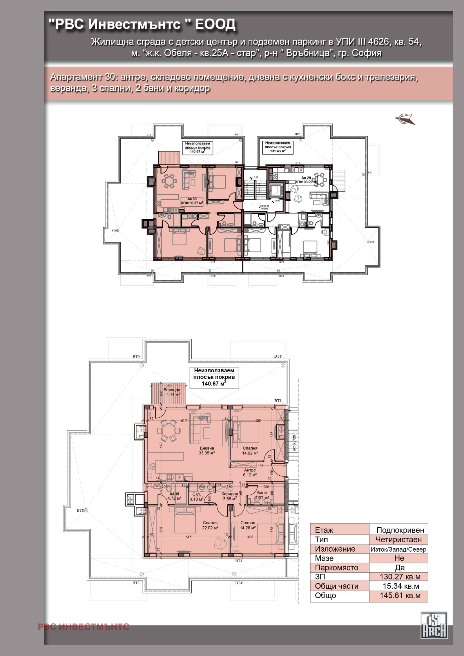
'РВС Инвестмънтс' ЕООД има удоволствието да Ви представи просторен четиристаен апартамент в сграда 'Мелиа Резидънс'. Сградата се намира в кв. Обеля и е в непосредствена близост до метростанция 'Обеля'.
Апартаментът е с 145.61 кв.м. обща площ заедно с 140.67 кв.м. самостоятелена тераса и е разположен на четвърти жилищен етаж, с изложение Изток, Запад, Север. Имотът се предлага на етап шпакловка и замазка по БДС.
Цената е с включено ДДС.
За повече информация може да се свържете с нас на посочените телефони.
Офис Мениджър - 0896824835/0877401739
Централен офис - +359 2 426 1244



