Имаме удоволствието да представим 4-стайно жилище в нова сграда с Разрешение за строеж, на много комуникативно място в квартал Банишора, на бул. Генерал Николай Г. Столетов.
Обектът ще бъде изпълнен с високо качествени материали, фасада от стъкло и камък, железни парапети, шесткамерна дограма, гранит в общи части, асансьор Orona, с модерно излъчване и довършителни работи.
Сградата е бутикова, с по два апартамента на етаж, едно външно паркомясто и подземен паркинг, като на партер има едно жилище с двор.
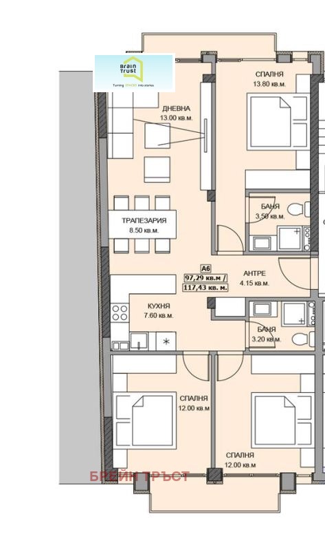
Имотът е с чиста площ от 97.30 кв.м. и се състои от дневна с трапезария и кухненски бокс, две бани, три спални, две тераси и антре. Функционално разпределение и максимален комфорт.
Апартаментите ще бъдат с ТЕЦ. Строителят е доказан и с други обекти в района.
Код на оферта 6514
За повече информация: +359 877 214 549







