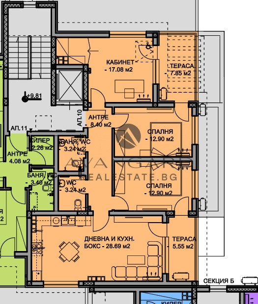
ПРОСТОРНИ СТАИ! ВЪЗМОЖНОСТ ЗА ЗАКУПУВАНЕ НА ПАРКОМЕСТА И ГАРАЖИ! Представяме Ви ЧЕТИРИСТАЕН апартамент в новострояща се сграда със следното разпределение: хол с кухня и трапезария, ТРИ СПАЛНИ, ДВЕ БАНИ С ТОАЛЕТНИ, входно антре, две тераси и прилежащо избено помещение. Жилището ще бъде завършено до шпакловка и замазка, което Ви дава възможност да го довършите и обзаведете по ваш вкус. Намира се в близост до училища, детски градини, магазини и удобен транспорт. Има възможност за закупуване на паркоместа и гаражи.
Авангард Риъл Естейт предлага Висока сигурност при покупка на имот и цялостно съдействие до финализиране на сделката пред нотариус. За контакт: email: [email protected]; За още актуални оферти: www.avangardrealestate.bg
Виж всички обяви в avangardimoti.bazar.bg или тук
        
       
         
         
         
             
             
            






