Предлагаме за продажба мезонет с три спални с АКТ 16 в кв. Дианабад, в жилищна сграда VMV Residence на ул. Пимен Зографски.
Изключително комуникативно място, на пешеходно разстояние от детски градини, училище, хранителни магазини, спирки на градски транспорт и Ловен парк.
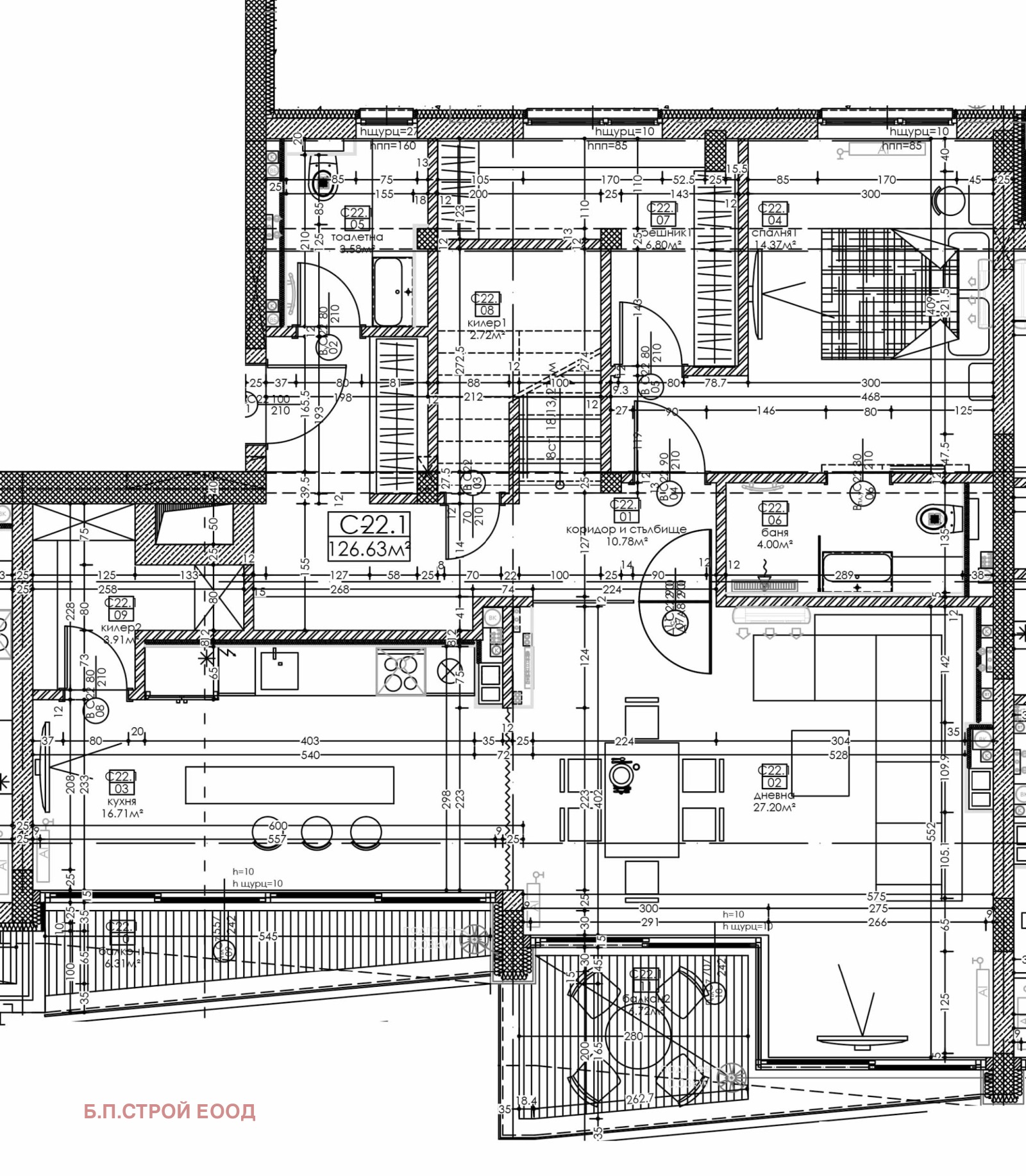
Жилището е разположено във вход С на сградата, изложението е югоизток/ северозапад, етаж 8 и 9. Апартамент С-22 е със застроена площ от 231 кв.м. и има следното разпределение:
Ниво 1: коридор, кухня, трапезария, дневна, спалня с дрешник и баня с тоалетна, тоалетна, склад и два балкона.
Ниво 2: спалня с дрешник и баня с тоалетна, втора спалня с дрешнк, баня с тоалетна, мокро помещение и два балкона.
Сградата, в която се намира имотът е с разрешение за ползване от 2022г., разполага със собствен вътрешен двор и две сутеренни нива, които осигуряват паркиране за всеки имот.
Довършителните работи са изпълнени с висок клас материали, фасадата е окачена с клинкерни плочи и еталбон, алуминиева дограма Reynaers с троен стъклопакет, стъклен парапет и асансьор Tyssenkrupp .
Общите части на сградата са изпълнени с висококачествен гранитогрес по стълбища и площадки, мазилка и декоративни керамични тухли по стените.
Отоплението в сградата е на ТЕЦ с монтирани радиатори в помещенията.
Посочената цена на този имот е без вкл. ДДС.
За повече информация и организиране на огледи : 0893 00 73 73
Виж всички обяви в bpstroi.bazar.bg или тук
        
       
         
         
         
         
         
         
         
         
         
         
         
         
         
         
         
         
             
             
             
             
             
             
             
             
             
             
             
             
             
             
             
            


