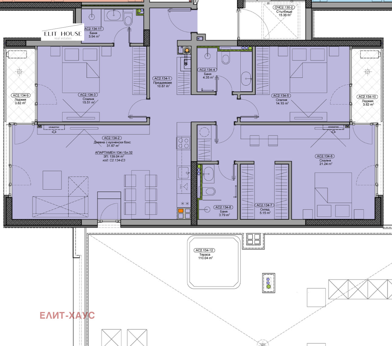
Елит Хаус представя за продажба просторен слънчев Непреходен 4-стаен апартамент в Затворен комплекс дело на водещо име в архитектурни среди,
Комплексът е с Акт 16 и се намира в непосредствена близост до Киноцентър Бояна, жилището е разположено на трети жилищен етаж, и представлява три непреходни спални едната от който с индивидуална баня с тоалетна и дрешник, втора баня с тоалетна, голямо мокро помещение, отделно котелно с газов котел, дограмата висок клас Пвц дограма, входни врати Солид, общи части на камък,
Комплексът разполага също с озеленени вътрешни пространства за отдих и разходка, ресторант, фотнес център, към апартамента има голям склад , жилището е на шпакловка и замазка!
Към имота продаваме две подземни парко места с топла връзка на допълнителна цена от 55 000 евро!
Забповече информация на посочения телефон : 0886100882







