L Artista Ви представя възможност да станете собственик на апартамент в изключителна сграда с АКТ 16, на 5 мин. от метростанция 'Витоша'.
Реф. 127
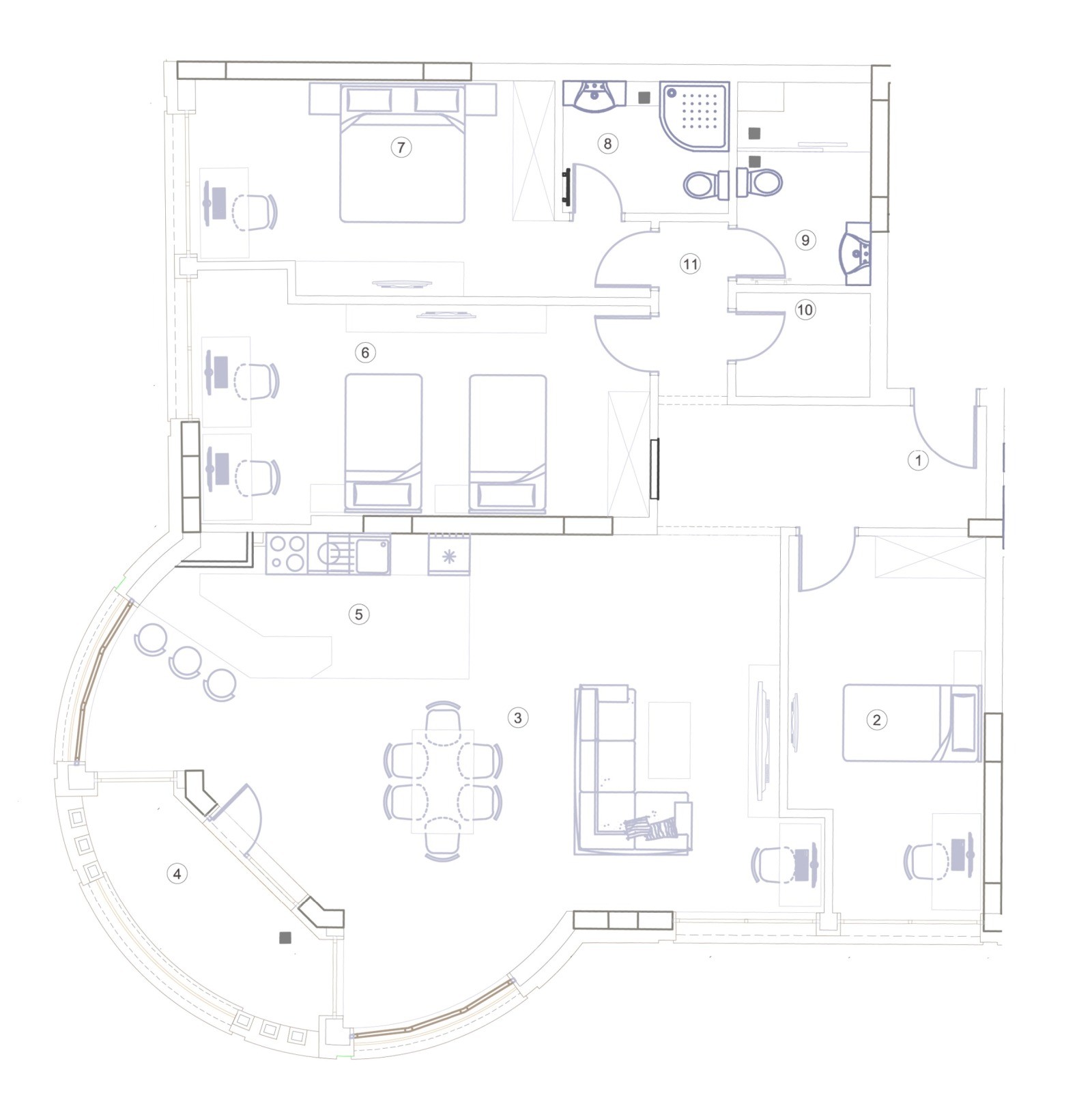
Четиристаен апартамент разположен на шести етаж в луксозна жилищна сграда. Имотът се състои от антре, дневна с кухн. бокс, коридор, 3 спални, 2 бани с WC, скл. помещение и лоджия.
Има възможност за закупуване на паркомясто.
Всеки апартамент се издава с подово отопление с индивидуална термопомпа и висок клас газов котел. Сградата има съвременен и енергоефективен дизайн. Построена с висококачествени строителни материали и иновационни технологии. Просторни и светли помещения с високи тавани. Отлична инфраструктура, в близост до метростанция и търговски център.
Свържете се с нас за повече информация и за организиране на оглед.







