Без комисионна от Купувача!!!
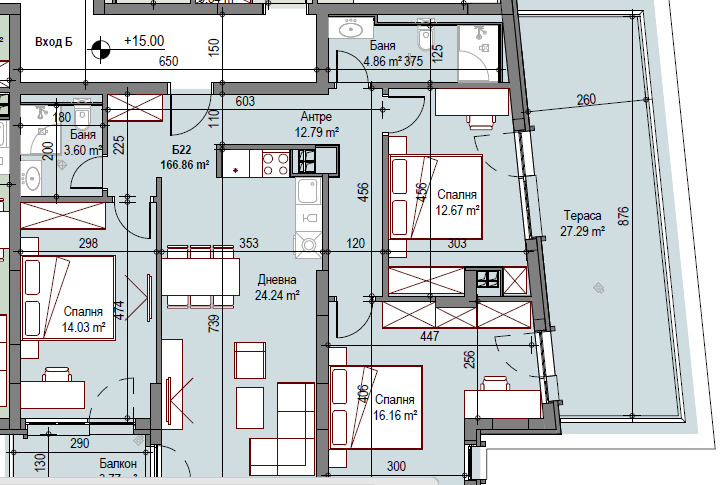
Ара Естейт продава четиристаен апартамент с площ 166.86 кв.м, намиращ се на шести етаж, състоящ се от: дневна, три спални, две бани с тоалетни, мокро, склад и два балкона. Изложение юг/изток. С възможност за обединение на едната спалня с дневната, което образува 38 кв. Имотът се намира в новострояща се сграда в кв. 'Сухата река' в близост до ул. 'Черковна'. Централното, но същевременно тихо и спокойно местоположение, е основен приоритет за живущите в този район на столицата. Сградата е в близост до: метростанция Хаджи Димитър (3мин.), църквата на ул. 'Черковна', метростанция Театрална (10мин.), училище 143 ОУ (5мин), детски градини Дъга и Слънце (5мин.), парк-градина (1 мин.), парк Заимов , магазини BILLA на 'Черковна' и на 'Владимир Вазов' (3 мин.). Районът е с добре изградена инфраструктура. Апартаментите в сградата са идеални както за живеене, така и за отдаване под наем.
Заложени са най-модерните технологии и съвременни материали, за да се създаде висок стандарт, уют и спокойствие на живущите. Апартаментите са проектирани по европейски стандарти, с добър жилищен обем и усещане за простор и светлина.
Ограждащите и преградни стени са тухлени, заложени са висококачествените тухли Wienerberger, фасадните стени са от полимерна мазилка и естествен камък.
Сградата е топлоизолирана с 10 см EPS изолация. Покривите са топлоизолирани с XPS изолация 10 см. и двойно хидроизолирани. Всички тераси също ще са хидроизолирани.
Общите части на сградата ще бъдат луксозно изпълнени и оборудвани с гранит, дървена ламперия и луксозен хидравличен асансьор. Прозорците ще бъдат оборудвани с шесткамерна дограма с трислоен стъклопакет и К стъкло,шумо- и топлоизолация
Предвидени са фасадно Лед осветление и декоративно градинско осветление, система за контрол на достъпа към сградата и към подземния гараж; система за видеонаблюдение, видеодомофонна система с контрол на достъп с карта или чипове; СОТ система за всеки апартамент; електронни водомери, при които цялата информация ще се сканира от входа на сградата; изводи за електрически щори за всеки прозорец в жилищната част; изводи за климатици във всяка стая; изводи за радиатори за ТЕЦ; подово отопление в баните и изводи за поставяне на лири; блиндирани врати.
Предлагат се и други имоти в жилищната сграда, която включва 15 апартамента във вх. А и 34 апартамента във вх. Б , магазин и общ подземен паркинг.
В сградата има от същия апартамент на различни етажи!!!
Цената е без промяна до влизане в експлоатация!
Виж всички обяви в domikandk.bazar.bg или тук
        
       
         
         
             
            






