Директно от инвеститора и без комисионна! С акт 14 и чл. 181.
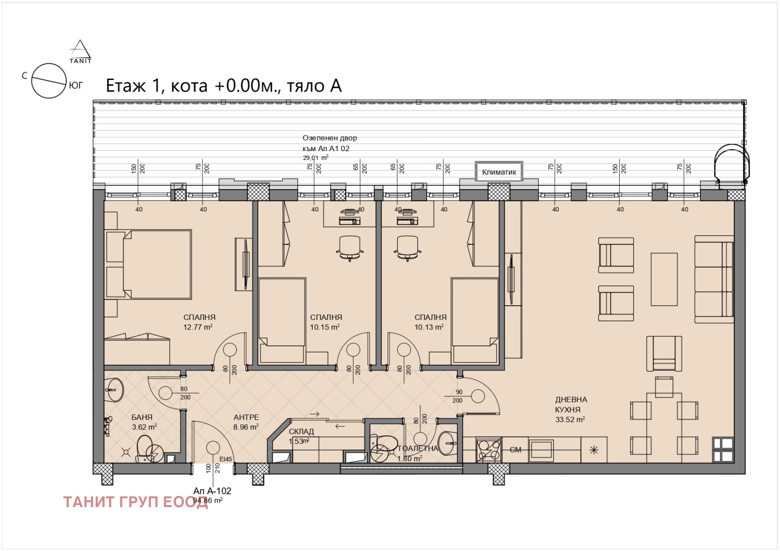
Предлагаме за продажба ап. А1 02, четиристаен, на партер (кота +0,00м.) с РЗП 95 кв.м. (142кв.м. с вкл. общи части, двор от 29кв.м. и склад от 2кв.м.) в сграда Lion Hill етап 1.
Цената на апартамента е 283 000 евро с вкл. ДДС. За ап. А1 02 сме предвидили отопление с термопомпа и подово отопление като подовото отопление е включено в цената.
Ап. А1 02 е проектиран с прекрасна дневна с кухненски бокс с площ 34 кв.м. с правилна квадратна форма, три отделни спални, баня с тоалетна, отделна тоалетна и склад.
Дограмата на ап. А1 02 е от най-висок клас - алуминиева на Etem с троен стъклопакет, стъкло 4 сезона, топъл дистанционер, транспортен профил и хидролента като профилът е в най-модерният цвят черен мат.
Предлагаме и възможност за завършване на апартамента 'до ключ' по наш или ваш проект, като довършителните работи ще се извършват паралелно със строителството, за да можете да получите готов за нанасяне апартамент веднага след получаване на акт 16.
В съседство на същия етаж ще бъде и новия офис на фирмата ни.
В сградата се предлагат и паркоместа като има опция за закупуване и на повече от едно паркомясто.
Сграда Lion Hill се изпълнява с най-висок клас материали, като целта ни е да се откроява с по-високо качество на изпълнение от другите сгради в района.
Зидариите са с най-висококачествени тухли на Wienerberger, а фасадата на сградата да бъде изпълнена с топлоизолация и мазилка на Baumit. Цялостното решение за фасадата на сградата е замислено да предложи топлоизолация и шумоизолация от най-висок клас, както и по-ниски разходи за отопление и охлаждане.
Входните врати на апартаментите ще са на лидера в областта Solid 55. Общите части на сградата ще бъдат изградени по дизайнерски проект. Предвиден е контрол на достъпа до сградата с лицево разпознаване и видеонаблюдение на общите части за максимална сигурност. В двора на сградата ще бъде изградено просторно озеленено пространство за почивка и игри с контролиран достъп само за собствениците.
Екипът, отговорен за проектирането и изпълнението на сграда Lion Hill, е съставен от доказани професионалисти с дългогодишен опит и десетки реализирани жилищни сгради, построени стотици хиляди кв.м. РЗП и множество награди за Сграда на Годината и Фасада на Годината. Както и за останалите проекти на Танит Груп, главен изпълнител на сграда Lion Hill са отново нашите партньори от фирма Юнимекс, главен проектант е арх. Иван Моев и студио Топ Арх.
Сграда Lion Hill се намира в гр. София, кв. Левски Г, ул. Могилите 7, срещу бл. 4. Ние вярваме, че кв. Левски Г все повече ще се утвърждава като предпочитано място за живот, благодарение на изградената улична инфраструктура, наличието на детски градини и училища, близостта си до центъра на гр. София и отличната транспортна свързаност.
На пешеходно разстояние от сграда Lion Hill се намират 199 Основно Училище 'Св. Апостол Йоан Богослов, две общински детски градини, както и частни детски центрове. На 5 минути пешеходно разстояние е новият магазин от верига Фантастико, а магазин Билла е на около 7 минути пешеходно разстояние.
С автомобил разстоянието от сграда Lion Hill до ЦУМ и Президентството се изминава за около 15мин., благодарение на директната връзка посредством бул. Владимир Вазов. Близостта до Околовръстния път и Северната скоростна тангента (и в частност очакваното започване на строителството на директна връзка към нея) също спомагат за лесния достъп до кв. Левски Г.
През 2026г. се очаква да бъде готово и разширението на най-модерната трета линия на метрото, чрез което значително ще се улесни и достъпът с градски транспорт до центъра на гр. София. Сграда Lion Hill е на пешеходно разстояние от около 650 м. от третата станция на новостроящия се участък МС Генерал Владимир Вазов. От там за около 10-тина минути ще бъде възможно да се стигне до парка Заимов и Орлов Мост.
Изграждането на сграда Lion Hill етап 1 започна средата на м. август 2024г., акт 14 беше получен ноември 2025г., акт 15 e предвиден за 2026г., а непосредствено след това и въвеждането в експлоатация с акт 16 и разрешение за ползване на етап 1.
Строителството на сграда Lion Hill е изцяло обезпечено финансово със собствени средства и банково финансиране от началото на строителството до акт 16, като по този начин изцяло сме премахнали риска за нашите клиенти. Финансовото обезпечаване на проекта ни позволява и да предложим разнообразни схеми на плащане, съобразени с нуждите на всеки клиент.



