Супер луксозно строителство! В близост до метростанция Овча Купел - 800 м Перфектна инфраструктура!
Обадете се сега на 0878 878 535 или 0894 466 863!
Обявената цена е с ДДС и е най-ниската възможна цена, според начина на плащане. Осигурено ипотечно и потребителско финансиране на ранен етап-ниски лихви!
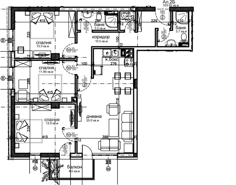
Четиристаен апартамент с югозападно изложение в новата дизайнерска сграда 'РИВАЙВ'- адрес бул.Никола Мушанов, но всъшност на 50м. отстояние него. Сградата предлага директен бърз достъп до булеварда и в същото време локацията е спокойна, тиха. На границата на три квартала - Овча Купел, Красна поляна и Лагера, недалеч от ул. Житница. МИНИМАЛНИ ОБЩИ ЧАСТИ-РЕАЛНА,ИЗПОЛЗВАЕМА ПЛОЩ!
Ап. 2Б
Етаж: 2
Спални бр.: 3
Обща площ (ЗП+ Общ.ч.) м2: 115,79
Общи части м2: 12,14
✅ Всеки кв.м - полезна площ!
✅ СВЕТЛИ (чисти) площи на помещенията, измерени без стени!
✅ 10 % общи части за сградата !
✅ Супер луксозно и качествено строителство!
✅ Обезопасена детска площадка към сградата.
✅ Детска градина към сградата!
✅ Кулинария/топла кухня/ Bar &grill към сградата.
✅ Офис на Еконт във сградата!
✅ Офис на Изпей във сградата!
✅ На границата на три квартала Овча купел, Красна Поляна и Лагера ;
✅ Перфектна инфраструктура, на бул. Никола Мушанов, сграда на 50м. от булеварда ;
✅ Срещу бъдещия нов атрактивен квартал Галакси , разположен на площ от 200 дка;
Предстоящо изграждане на Кауфланд, Технополис, Практикер срещу сградата;
✅ В близост до: МЕТРОСТАНЦИЯ, държавни училища, детски градини, пазар, МБАЛ Надежда
✅ Разсрочено плащане. Осигурено преференциално кредитиране още в начален ет
Виж всички обяви в genovandco.bazar.bg или тук
        
       
         
         
         
         
         
         
         
         
         
         
         
         
             
             
             
             
             
             
             
             
             
             
             
            


