Агенция Гранд Инвестмънт Груп предлага на Вашето внимание тристаен апартамент, находящ се на етаж 2 в нова жилищна сграда, която в момента е в процес на строителство в ж.к. Люлин 10.
Сградата е с планирани срокове за завършване:
Акт 14 до 04.01.2027 г.
Акт 15 до 10.01.2028 г.
Акт 16 до 01.04.2028 г.
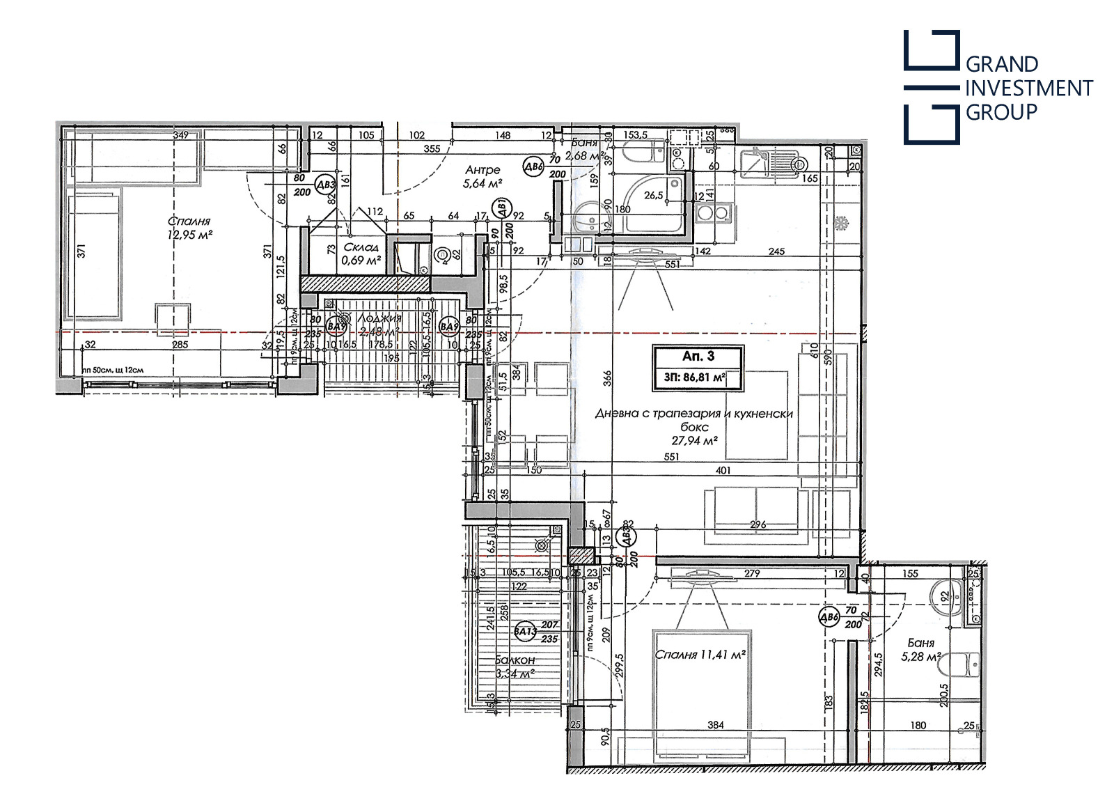
Предлаганият имот е с обща площ от 101,29 кв.м, с много добро вътрешно разпределение, правилни помещения и отлична възможност както за лично ползване, така и за покупка с инвестиционна цел.
Жилището ще бъде издадено по БДС, като в продажната цена са включени:
PVC дограма с троен стъклопакет, машинно положени гипсови и циментови мазилки, изградена електроинсталация, ВиК до тапа, отоплителна инсталация с монтирани радиатори, централно отопление на ТЕЦ, включен бойлер, входна блиндирана врата SOLID, асансьор и напълно завършени общи части.
Сградата е проектирана с акцент върху ниски експлоатационни разходи, добра топлоизолация, функционални жилища и комфортна градска среда, като районът предлага бърз достъп до основни пътни артерии, спирки на градски транспорт, търговски обекти, училища и детски заведения.
За удобство на бъдещите собственици се предлагат, също:
Паркоместа на цена 22 000 евро с ДДС, единични гаражи на цена 26 000 евро с ДДС, гаражи на две нива с рампа на цени от 40 000 евро с ДДС, двойни гаражи на едно ниво на цена 44 000 евро с ДДС, както и складови помещения на цена 3 000 евро с ДДС.
За повече информация и организиране на среща, моля потърсете ни на оставения телефон за връзка.



