ИМОТИ СИЛВИ Ви предлага - ТРИСТАЕН апартамент в НОВОСТРОЯЩА СЕ жилищна сграда идеален Център.
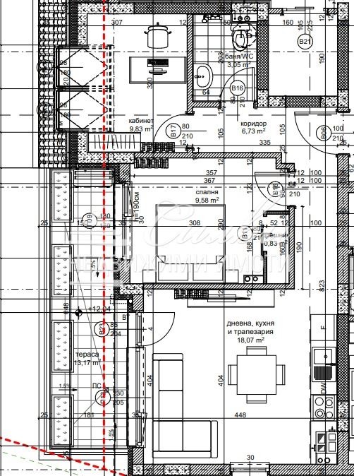
Жилището е с площ от 82,25кв.м. разпределени на: входно антре, кухня с дневен тракт, ДВЕ спални,от които едната разполага с дрешник, баня и тоалет заедно и тераса.
Бутиковата жилищна сграда е с модерна визия и висок клас изпълнение, в етап на строителство с издаден акт 14. Съчетава елегантна архитектура, качествени материали и прецизно планирани жилищни пространства. Апартаментите са проектирани с внимание към детайла, осигурявайки простор, естествена светлина и комфорт. Локацията предлага удобство и бърз достъп по всички ключови точки на града. Отличен избор, както за лично ползване, така и за инвестиция с дългосрочна стойност. Луксозни общи части и хидравличен асансьор. Изложение: ЮГ/ ЗАПАД.
ВИД НА ЗАВЪРШЕНОСТ - по БДС: стени бяла гипсова мазилка, таван гипсова шпакловка, под - циментова замазка, поставени ключове и контакти, входна врата - висок клас блиндирана.
Етапът на строителство позволява гъвкави условия на покупка и възможност за избор на довършителни работи според предпочитанията на клиента.Възможност за закупуване на подземни ГАРАЖИ и ПАРКОМЕСТА.
Обява N562-4976
НИЕ ВИ ПРЕДЛАГАМЕ: Безкомпромисно обслужване до финализиране на сделката, като ще получите БЕЗПЛАТНИ юридически консултации, съдействие за получаване на ИПОТЕЧЕН КРЕДИТ (до 100% финансиране!!!) при възможно НАЙ-ДОБРИ УСЛОВИЯ за клиента!
За повече информация посетете офиса ни на адрес гр.Шумен, ул. Цар Иван Александър 80; тел.0894 444 532







