Vivahome има удоволствието да предложи в продажба апартамент в бутикова жилищна сграда, кв. Виница, гр. Варна.
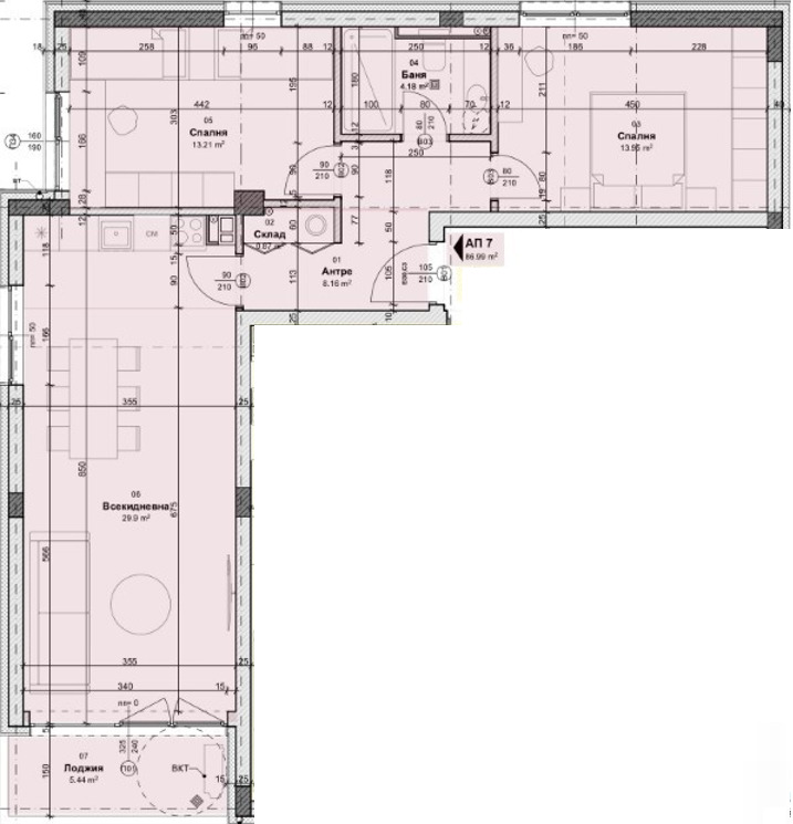
Имотът разполага с чиста жилищна площ от 104 кв. м. и е със следното разпределение:
--> Входно антре/коридор
--> Всекидневна с кухня
--> Две спалних 13кв.м
--> Тераса
--> Санитарен възел
--> Изба
✔Югоизточно изложение и страхотна морска гледка
✔Удобно и функционално разпределение
✔Просторни и светли стаи
✔Статут апартамент
✔Прилежащо мазе
✔Възможност за покупка на паркомясто
✔Разсрочено плащане
Подходящ за покупка с банков кредит!
Имотът се намира в новострояща се бутикова жилищна сграда, без такса поддръжка в кв. Виница, гр. Варна, която се отличава със:
✔Страхотно местоположение - във високата част на кв. Виница, едно от най-тихите кътчета в квартала. Сградата е заобиколена от зеленина, природа и модерни нови сгради.
✔Луксозно изпълнение. Качествено строителство и комфорт. Гарантирано топло и шумо изолирани апартаменти. Прозоречните системи са изработени от профили на световния лидер Cortizo. Най-доброто от най-добрите.
✔В непосредствена близост са бул. 'Цар Борис III-ти', центъра на квартала и булевард 'Св. св. Константин и Елена', който осигурява бърз достъп до едноименния курорт.
Цена - 136 000 EUR
За повече информация и огледи: Бойко Спасов, 0879991120
Съдействаме за отпускане на банков кредит - обадете ни се за консултация !
VIVAHOME - комплексни решения в сферата на недвижимите имоти !
Разгледайте и другите ни предложения на www.vivahome.bg



