Ексклузивно от Адрес!
Светъл и просторен тристаен апартамент в чисто нов жилищен комплекс в един от най-спокойните райони на град Варна - Аспарухово.
Апартаментът е ситуиран на 2-ри жилищен етаж в нова тухлена кооперация.
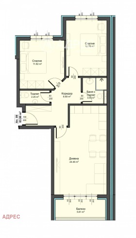
Жилището разполага с площ от 92 кв.м. разпределена в коридор, дневен тракт с кухненски бокс, две спални, балкон, баня и тоалетна, и втори санитарен възел.
Имотът ще бъде издаден по БДС стандарт - на шпакловка и замазка.
На 8 минути от центъра на град Варна! Спокоен район, в близост до спирка на градски транспорт, парк, училище, детска градина, магазини от всякакъв тип.
Разположен близо до морето, в тиха и среда с много зеленина, и чист въздух.
Новострояща се модерна сграда със зелени площи и детски кът.
Има възможност за закупуване на паркоместа.
Обади се сега и цитирай този код 682411







