Луксозен тристаен апартамент с две спални, дневна и невероятна морска панорама!
Този просторен и светъл апартамент предлага всичко за комфортен и стилен начин на живот:
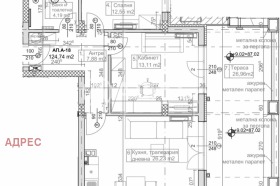
Две отделни спални, едната със самостоятелен санитарен възел. Излаз от всяка от тях към огромна панорамна тераса създаваща с невероятно морско усещане.
Два модерни санитарни възела и перално помещение.
Огромен дневен тракт с отворено пространство, идеално за семейни събирания или развлечения;
Една прекрасна, просторна тераса с панорамен изглед към морето
Този жилищен комплекс предлага уникална възможност да се наслаждавате на най-доброто от два свята: динамиката на градския живот и спокойствието на природата. Разположен в стратегическа зона, той комбинира удобството на близостта до булевард с непосрдествения достъп до плаж и гора, създавайки идеален хабитат за модерния човек.
Основни предимства:
Ексклузивен паркинг: Пространен и сигурен паркинг за живущите, проектиран с модерни технологии за максимално удобство и безопасност.
Качествено строителство с премиум материали: Използвани са висококласни материали и доказани технологии, които гарантират дълготрайност, енергийна ефективност и отличен акустичен комфорт.
Стъклени фасади и метални елементи: Панорамните прозорци и металните декорации осигуряват изобилие от естествена светлина и визуална лекота, съчетани с индустриален шарм.
Интелигентно разпределение на пространството: Функционални апартаменти с отворени концепции, висококачествени финиши и възможност за персонализиране според вашите предпочитания.
Локция, качество на строителството, морска панорама, отлична цена.
Обади се сега и цитирай този код 644771







