АКТ 16! ! ! ДО КЛЮЧ! ! ! АВТОБУСНИ СПИРКИ И БЪДЕЩА МЕТРОСТАНЦИЯ! ! ! В БЛИЗОСТ ДО ВИСШИ УЧЕБНИ ЗАВЕДЕНИЯ! ! ! СТУДЕНТСКИ ПАРК! ! !
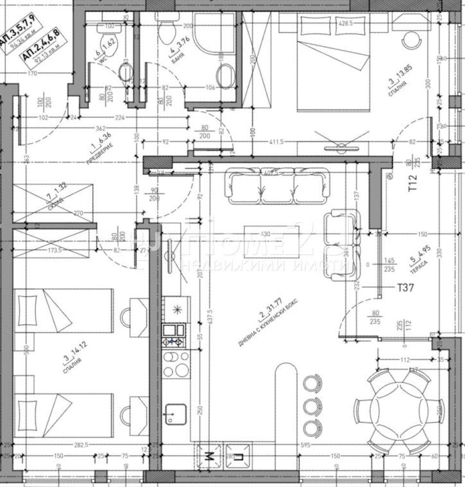
Представяме Ви, просторен 3-стаен апартамент завършен ДО КЛЮЧ! Апартаментът се намира на 3-ти от 6 етажа във висок клас сграда с АКТ 16 от 2025г. със следното функционално разпределение: антре, просторна дневна, 2 спални, тоалетна, баня с тоалетна и тераса. Сградата се намира на метри от висши учебни заведения като: УНСС, НСА, Технически университет, Лесотехническия университет, както и Химикотехнологичния и металургичен университет. В близост до Студентски парк, Фантастико, спирки на градския транспорт и бъдеща метростанция. За повече информация се обадете сега и цитирайте следния код: 256701



