Тристаен апартамент в бутикова сграда начален етап на строителство
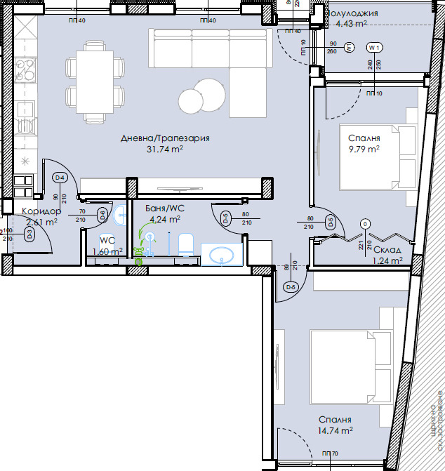
Предлагаме за продажба тристаен апартамент, разположен на 2-ри етаж в малка бутикова жилищна сграда със стартирало строителство (начален етап). Имотът е с обща площ от 76 кв.м и предлага функционално разпределение, подходящо както за лично ползване, така и за инвестиция.
Сградата е проектирана с внимание към детайла и ограничен брой апартаменти, което осигурява спокойна жилищна среда, повече лично пространство и по-високо качество на обитаване.
Локацията е сред ключовите предимства районът се развива динамично, с добра инфраструктура и лесен достъп до основни пътни връзки. В близост са разположени магазини, градски транспорт и удобства за ежедневието, което прави имота отличен избор както за живеене, така и за отдаване под наем.
Жилището се предлага в начален етап на строителство, което позволява гъвкава схема на плащане и възможност за капиталов ръст във времето.
Отлична възможност за инвестиция или създаване на модерен и удобен дом.







