ТОП ЦЕНА! ТРИСТАЕН В НОВА СГРАДА С АКТ 14! ИЗЦЯЛО ЮЖЕН!
Варна Естейт предлага за продажба просторен тристаен апартамент с изцяло южно изложение, с гледка към езеро, разположен в новострояща се сграда в кв.Владиславово, гр. Варна.
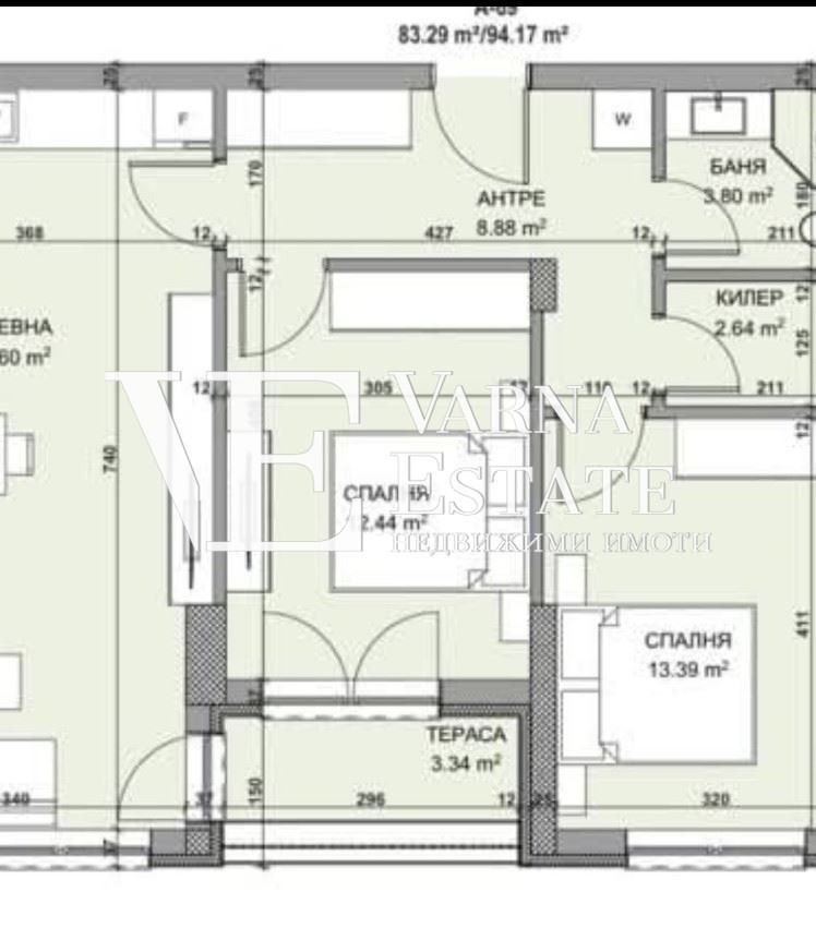
Жилището е със следното функционално разпределение:
светъл дневен тракт с площ 32 кв.м
две самостоятелни спални
баня с тоалетна
килер/складово помещение
Апартаментът е среден, което го прави изключително топъл и енергоефективен. Разположен е на 9-ти етаж от 10 в сграда с асансьор.
От имота се открива панорамна гледка към Варненското езеро и Аспарухов мост.
Сградата е на етап АКТ 14, с възможност за гъвкава схема на плащане.
Допълнителни предимства:
възможност за паркомясто или гараж
ново строителство
отлична осветеност през целия ден
За повече информация и оглед:
📞 0877240281 - Дарина Иванова
реф. 10634



