🏡 **Прайм глобал груп продава се просторен 3-стаен апартамент в кв. Цветен, гр. Варна**
✨ Представяме Ви отличен имот, подходящ както за **семейно жилище**, така и за **инвестиция с добра доходност**. Апартаментът се намира в предпочитан и комуникативен район на Варна **кв. Цветен**, известен с удобната си локация и бързия достъп до ключови точки на града.
🔹 **Основни характеристики на имота:**
🛋️ **Вид имот:** 3-стаен апартамент
📍 **Локация:** гр. Варна, кв. Цветен
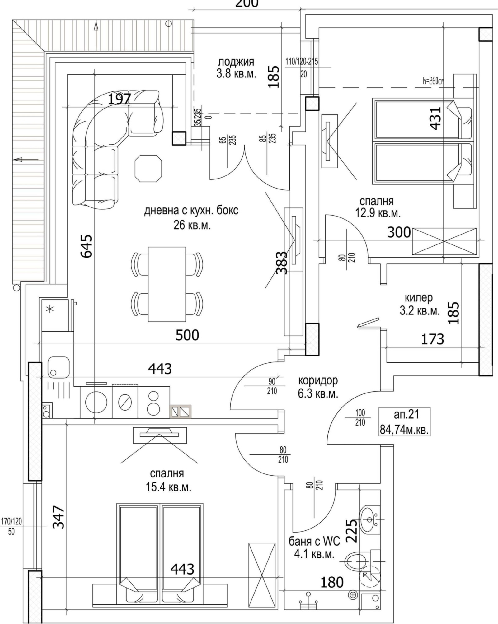
📐 **Обща площ:** 96.82 кв.м **Чиста площ** 84.74 кв.м
🚪 **Брой стаи:** 3
🛏️ **Брой спални:** 2
🚿 **Брой бани с тоалетна:** 1
🔹 **Разпределение и предимства:**
🌞 Просторна и светла дневна, която предлага уют и комфорт за цялото семейство
🍽️ Функционално пространство с възможност за обособяване на удобна трапезария и кухненска зона
🛌 Две самостоятелни спални, подходящи за семейство с деца, кабинет или стая за гости
🏠 Практично разпределение, осигуряващо удобство в ежедневието
💼 Подходящ както за живеене, така и за отдаване под наем
🌳 **За квартала:**
Кв. Цветен е един от предпочитаните райони на Варна, благодарение на добрата инфраструктура, зелените пространства и удобните транспортни връзки.
🚌 В близост ще откриете магазини, училища, детски градини, автобусни спирки и всичко необходимо за комфортен начин на живот.
📞 Свържете се с нас за повече информация и организиране на оглед!
Код 1326







