ПРЕКРАСЕН СЕМЕЕН АПАРТАМЕНТ! СЛЕД АКТ 14! ЮЖНА ДНЕВНА 30м2 + ДВЕ НЕПРЕХОДНИ СПАЛНИ! СУПЕР ЛОКАЦИЯ! ОПЦИЯ ПМ И ГАРАЖ!
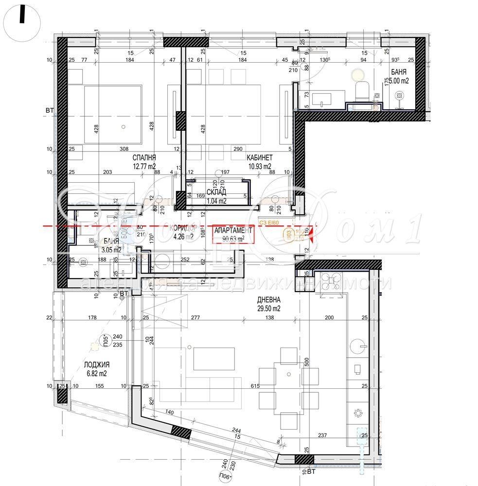
Имотът представлява: Коридор с място с мокро пом. и вграден гардероб, Дневен Тракт + Кухненска част и трапезария 30кв.м с излаз на чудесна Тераса 7кв., родителска Спалня около 12кв.м. със собствена, голяма Баня и Тоалетна 5кв.м. дестска Стая около 13кв.м., както и втора Баня с тоалетна. Възможност за закупуване на паркомясто и гараж на цени от 22 000 . Помещава се в новострояща се тухлена сграда с асансьор на 2-ри етаж от 6, с изложение юг-запад-север, без преход, без отстъп и без скосяване. Статут 'Апартамент'. Отличната му локация го прави чудесно жилище, както за живеене, така и за инвестиция със сигурен доход.
Състояние: Имотът се издава съгласно БДС Екстериорна блиндирана врата. Под: нивелирана замазка подготвена за полагане на гранитогрес, паркет или настилка по Ваш избор. Стени: машинно обработена гипсова мазилка с турбозол подготвена за боя или тапет по ваш избор. Мокри Помещения: ръчно обработена циментова мазилка подготвена за полагане на фаянс и теракота .ВиК инсталация на тапа . ЕЛ инсталация : контакти, ключ и фасонки. ПВЦ дограма .
Отлична Локация: Имота се намира в един от най-предпочитаните за живеене и инвестиция райони на град София - кв. Овча Купел. В близост до Посолство на Република Украйна, ул. 'Боряна' и ул. 'Монтевидео'. Лесен и бърз достъп до главни пътни артерии, административни учреждения, банки, училища, детски градини, автобусни спирки, детски площадки, аптеки, търговски центрове, супермаркети, козметични студия, заведения и туристически атракции.
Строителство : Висококачествено Ново Строителство стоманобетонна конструкция посрещащи всички норми за сеизмичност съгласно БДС . Монолитна зидария изпълнена с най-висок клас Австрийски керамични блокове. Висок клас ПВЦ 6-камерна дограма 'Aluplast' с троен стъклопакет. Топлоизолационна система BAUMIT ESP-60mm. Силикат-силиконова фасадна мазилка на фирмата BAUMIT с висока паропропускливост и самопочистващ се ефект.
Сградата: Луксозно завършени общи части на естествен гранит, парапети от хром-никел, безшумен електрически асансьор. Домофона система за контролиран достъп в сградата.
Забележка : Приложените по-горе описания, снимки, скици, архитектурни разпределения и визуализации имат за цел да Ви дадат максимално добра и идейна представа за общия вид и разпределението на имота ! Горепосочените са предоставени и одобрени от собственика, същите са публикувани с неговото съгласие ! Имотът се издава пригоден за живеене и е със статут на апартамент, което го прави идеален за инвестиция и отдаване под наем !
НОВ ДОМ 1 : Компанията разполага с : Юридически Отдел - извършващ всички необходими юридически и технически проверки на имота, организира всички етапи на сделката до нейното финализиране с нотариално прехвърляне на имота. Кредитен Отдел - съдействащ за отпускане на банков кредит при възможно най-добри условия за клиента, като избора на банка се определя спрямо нуждите и възможностите на клиента. Строително-Ремонтен Отдел - гарантиращ при нужда цялостен ремонт на вашето жилище до ключ при най-изгодни условия и цени.
Консултант Недвижими Имоти : Димитър Петров - 0895 501 006







