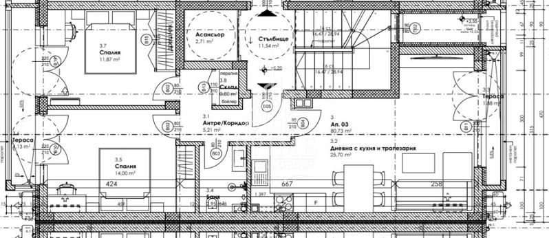
Прайм Глобал Груп предлага за продажба тристаен апартамент с площ от 97 кв.м., разположен в нова бутикова сграда.
Имотът се намира на втори жилищен етаж и е функционално разпределен, както следва:
- всекидневна с кухненски кът,
- две спални,
- баня с тоалетна,
- две тераси.
Апартаментът е разположен в гр. Бургас, ж.к. Меден рудник, зона Б.
Предимства на имота:
- нов модерен проект,
- отлична локация,
- гъвкава схема на плащане,
- възможност за закупуване на паркомясто или гараж в сградата,
- атрактивна цена.
Отлична възможност за инвестиция или за закупуване на нов дом в развиващ се район на град Бургас.
Код на имота: 1003







