АКТ 14!!! ЮЖЕН!!! СГРАДА РАЗПОЛОЖЕНА В НАЙ- ХУБАВА ЧАСТ НА КВАРТАЛ ВЛАДИСЛАВ ВАРНЕНЧИК!!!
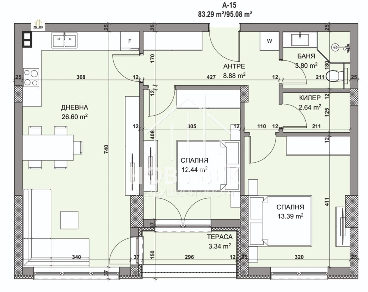
Агенция за недвижими имоти НОВ ВЕК ви представя тристаен апартамент в сграда VARNENCHIK 2 и 3 !Имотът е с чиста жилищна площ от 95.08 кв.м и се състои от: дневна с кухненски бокс, две спални , балкон и две санитарни помещения. Към жилището се предлага външно паркомясто на цена от 12 000 EUR
Сградата е бъде разположена под бул. 3-ти март,в близост до магазини KAUFLAND и JUMBO. Новите собственици, ще имат на разположение всичко необходимо, при това на метри пешеходно разстояние - магазини, аптеки, парк с алеи за разходка и обособени места за домашни любимци, спирка на градски транспорт с редовни линии до всички части на града, училища и детски градини, фитнес зала, банки, пазар, офиси на спедиторски фирми.
ПРЕДИМСТВА НА СГРАДАТА:
Функционални разпределения за максимален комфорт и уют на обитаване;
Светли и просторни стаи с правилни форми, всяко жилище в сградата разполага с 1 или 2 сервизни помещения;
Панорамна гледка към Варненското езеро и града
Качествено изпълнение до степен на завършеност БДС, подготвено за довършителни дейности;
БОНУСИ ПРИ ПОКУПКА НА ИМОТ В СГРАДАТА:
Безплатна консултация с интериорен дизайнер;
Отстъпка при поръчка на проект за интериорен дизайн;
Отстъпка от материалите, необходими за довършителни работи;
Отстъпка при поръчка на обзавеждане и оборудване;
Опция за завършване до ключ;
Обадете се сега и цитирайте този код: 718



