Представяме Ви модерен жилищен проект, съчетаващ функционалност, комфорт и висок клас строителство. Сградата е проектирана с един вход, стълбище и асансьор, осигуряващи удобен и безпрепятствен достъп от ниво терен, включително за хора с намалена подвижност.
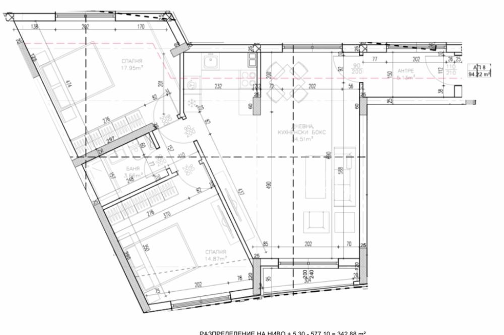
Жилищната част включва разнообразие от апартаменти двустайни, тристайни и четиристайни, както и един просторен мезонет. Всички жилища са проектирани с ясно обособени дневни и нощни зони, с цел максимален комфорт и ефективно използване на пространството.
Към имотите са включени складови помещения (мазета), както и възможности за паркиране в рамките на сградата.
ЦЕНАТА Е БЕЗ ВКЛЮЧЕН ДДС!
Сградата се намира в комуникативен и добре развит район на гр. София, с бърз достъп до основни пътни артерии и градски транспорт.
В близост са разположени търговски обекти, училища, детски градини и зони за отдих, което осигурява удобство и комфорт в ежедневието. Локацията предлага отличен баланс между спокойна жилищна среда и бърз достъп до централната част на града.
Сградата е изпълнена с висок клас материали и съвременни строителни технологии:
Монолитна стоманобетонна конструкция
Хидроизолация от висок клас с материали на Penetron
Външни и вътрешни тухлени зидове от Wienerberger
Вентилируема фасада с HPL панели и каменна вата
PVC дограма Salamander с троен стъклопакет
Покрив с топло- и хидроизолация и битумни керемиди
Централно отопление (ТЕЦ) и подготовка за климатици
Луксозни общи части по дизайнерски проект
Висок клас асансьор Orona
Контролиран достъп, видеонаблюдение и домофонна система
Паркирането е решено чрез подземен гараж с асансьорна платформа, както и гаражи и паркоместа на ниво терен, с осигурени маневрени пространства и възможност за изграждане на зарядни станции за електромобили.
Разнообразие от апартаменти и мезонет
Функционални разпределения с отделени дневни и нощни зони
Висок клас строителство и материали
Подземен гараж с асансьорна платформа
Осигурени гаражи и паркоместа
Подготовка за електромобили
Луксозни общи части и контролиран достъп
Подходящ както за живеене, така и за инвестиция
Спокойна и добре организирана жилищна среда
... Обади се сега и цитирай този код 691900



