Референтен номер: 4060.
НОВ МОДЕРЕН ЖИЛИЩЕН КОМПЛЕКС! ЛУКСОЗНИ ОБЩИ ЧАСТИ! ГЪВКАВИ СХЕМИ !
Представяме Ви нов модерен жилищен комплекс, който поставя началото на едно съвременно и качествено строителство. Проектиран с внимание към детайла и с ясна визия за комфортен начин на живот, проектът съчетава естетика, функционалност и устойчивост.
Сградата се отличава с модерна архитектура, изчистени линии и внимателно подбрани материали, които гарантират дълготрайност и високо качество на изпълнение. Жилищата са с разнообразни и добре обмислени разпределения, осигуряващи максимално удобство и оптимално използване на пространството.
Общите части са проектирани с фокус върху комфорта и уюта на живущите, като създават усещане за стил и завършеност още от входа. Предвидени са съвременни решения за енергийна ефективност, шумоизолация и възможност за интеграция на интелигентни системи за управление на дома.
Локацията е стратегически избрана – предлага спокойствие и същевременно бърз достъп до ключови точки в града, както и до всички необходими удобства за ежедневието.
Този проект е отличен избор както за собствен дом, така и за инвестиция с висока добавена стойност.
Предлагаме ви да закупите Тристаен апартамент в новостроящ се модерен комплекс в кв. КЮЧУК ПАРИЖ!
Основни характеристики на имота:
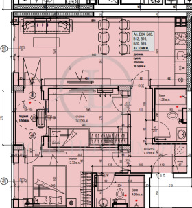
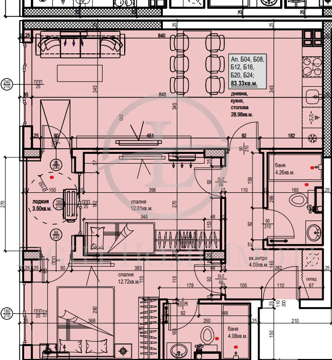
- Площ: 99,56 кв.м
- Разпределение: Просторен и светъл хол с кухненска част, две големи спални, две бани с тоалетни, входно антре, склад и тераса.
- Вид строителство: Ново , Тухла
- Етажност: 6 от 9
- Паркиране: Възможност за закупуване на надземни паркоместа и гаражи.
Състояние на имота: Апартамента ще бъде издаден на шпакловка и замазка, което ви позволява да си го отремонтирате и обзаведете по свой собствен вкус! Жилището ще бъде подготвено и окабелено за система "Умен дом".
ГЪВКАВИ СХЕМИ НА ПЛАЩАНЕ:
Схема 1: 10% ПРЕДВАРИТЕЛЕН ДОГОВОР 10% 4-ти ЕТАЖ 30% АКТ 14 20% 2 МЕСЕЦА СЛЕД АКТ 14 20% АКТ 15 10% АКТ 16
Схема 2: 20% ПРЕДВАРИТЕЛЕН ДОГОВОР 20% 4-ти ЕТАЖ 20% АКТ 14 20% 2 МЕСЕЦА СЛЕД АКТ 14 20% АКТ 16
Схема 3: 10% ПРЕДВАРИТЕЛЕН ДОГОВОР 20% ТРЕТИ ЕТАЖ 70% С КРЕДИТ НА АКТ 14
Локация: Тихо и спокойно място за живеене,а в същото време в близост до големи вериги магазини, детски градини,училища, спирки на градския транспорт и всичко , което е необходимо на Вас и







