АКТ 16!!!
ПАРКОМЯСТО, ВКЛЮЧЕНО В ЦЕНАТА!!!
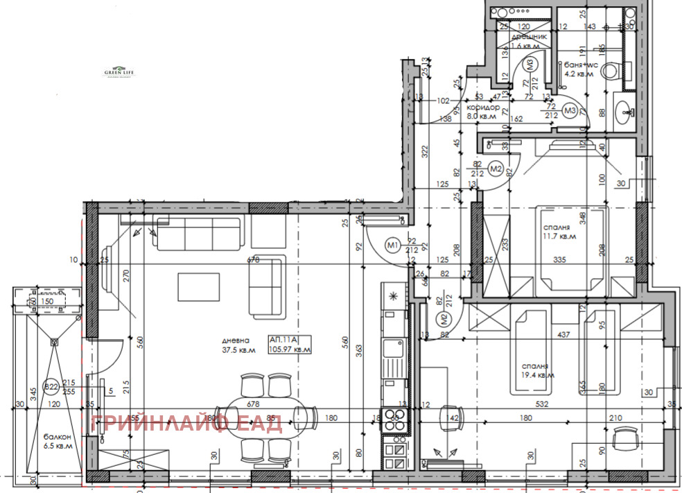
Предложеният апартамент е със застроена площ от 106 кв.м. и се състои от:
Просторна дневна с кухненски бокс /37,5кв.м./ , две спални, баня с тоалетна, складово помещение с възможност за втора тоалетна, тераса с излаз от дневната.
Отоплението е на ТЕЦ.
Изложение Югозапад/Северозапад/Североизток.
Сградата се намира до Метростанция Дружба.
За повече информация се обадете на 0896669658.







