Компания за недвижими имоти 'Купи в България' има удоволствието да предложи на своите клиенти просторен и светъл апартамент с две спални, намиращ се в сграда с акт 14 в квартал Вл.Варненчик.
Сградата е тухлена, седеметажна, с асансьор, решена в модерен стил. Акт 15 се очаква през месец май 2026г.
Строителството се извършва от доказан строителен екип, който гарантира използването на качествени материали и съобразяването с всички стандарти за качество и безопасност. Жилищата се издават в степен на завършеност БДС - входна врата, стени и тавани на шпакловка, подове на замазка, ВиК инсталация на тапи, бани измазани стени, монтирани ел. ключове и контакти, асансьор.
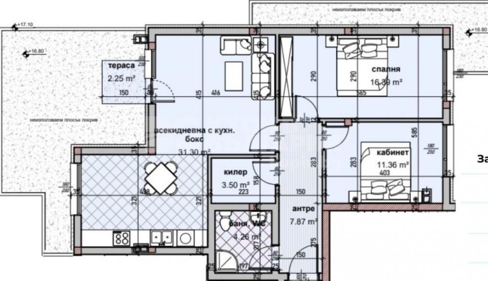
Жилището, което предлагаме да се превърне във Ваш Дом е с две спални, с площ от 108,50 кв.м, на етаж 7 от 7, изложение изток-запад и има следното разпределение: коридор, комбинирано санитарно помещение, килер, просторна и светла дневна с кухненски бокс, две спални и две тераси, както и прилежащ плосък покрив с площ от около 40 кв.м, с право на ползване само от съответния собственик на имота.
За Вашето удобство, има на разположение паркоместа, които можете да закупите към вашия нов дом, на цена от 12000 евро.
Локацията е много комуникативна с лесен достъп до обществен транспорт, магазини, училища , детски градини и ясли, ветеринарна клиника, заведения, детски площадки, паркове за отдих и разходки. В близост е до хипер-маркет Лидл и много други удобства.
Не пропускайте възможността да си осигурите своя нов дом. Свържете се с нас за повече информация и организиране на огледи!
При нужда от банково кредитиране , можете да се възползвате напълно БЕЗПЛАТНО от най-новата ни услуга - кредитно консултиране с някой от лицензираните ни кредитни консултанти, с помощта на който ще спестите време и излишно обикаляне по банкови офиси, а в същото време ще намерите най-подходящите за Вас условия и банка!!!! ID 36215



