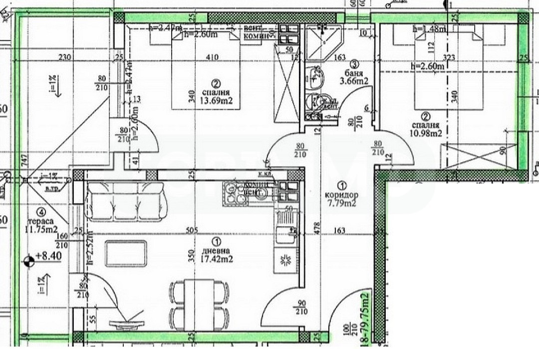
ТОПИММО предлага за продажба тристаен апартамент в нова жилищна сграда пред Акт 15 в квартал Виница. Още от първия етаж на сградата се открива красива панорамна гледка към квартала и морето.
Общите части на сградата ще бъдат завършени с гранит, алуминиеви парапети, структурна мазилка, луксозен асансьор, стилно и елегантно фоайе. Фасадата ще бъде изпълнена с външна хастарна мазилка, 10см топлоизолация и силиконова мазилка. Ще бъде положена елестична звукоизолационна подложка за защита от ударен шум - Fonas 31 на всички етажни плочи.
Апартаментът се състои от дневна с кухненски кът, 2 спални, баня с тоалетна, тераса и коридор. Продава се в степен на завършеност по БДС, има възможност за завършване 'до ключ'.
Възможност за закупуване на открито паркомясто (18 000 евро).
В сградата са налични за продажба и други апартаменти, за повече информация се свържете с нас! Референтен номер: AP-4883







