---ПАРКОМЯСТО В ЦЕНАТА---
---ВИДЕО В ОБЯВАТА---
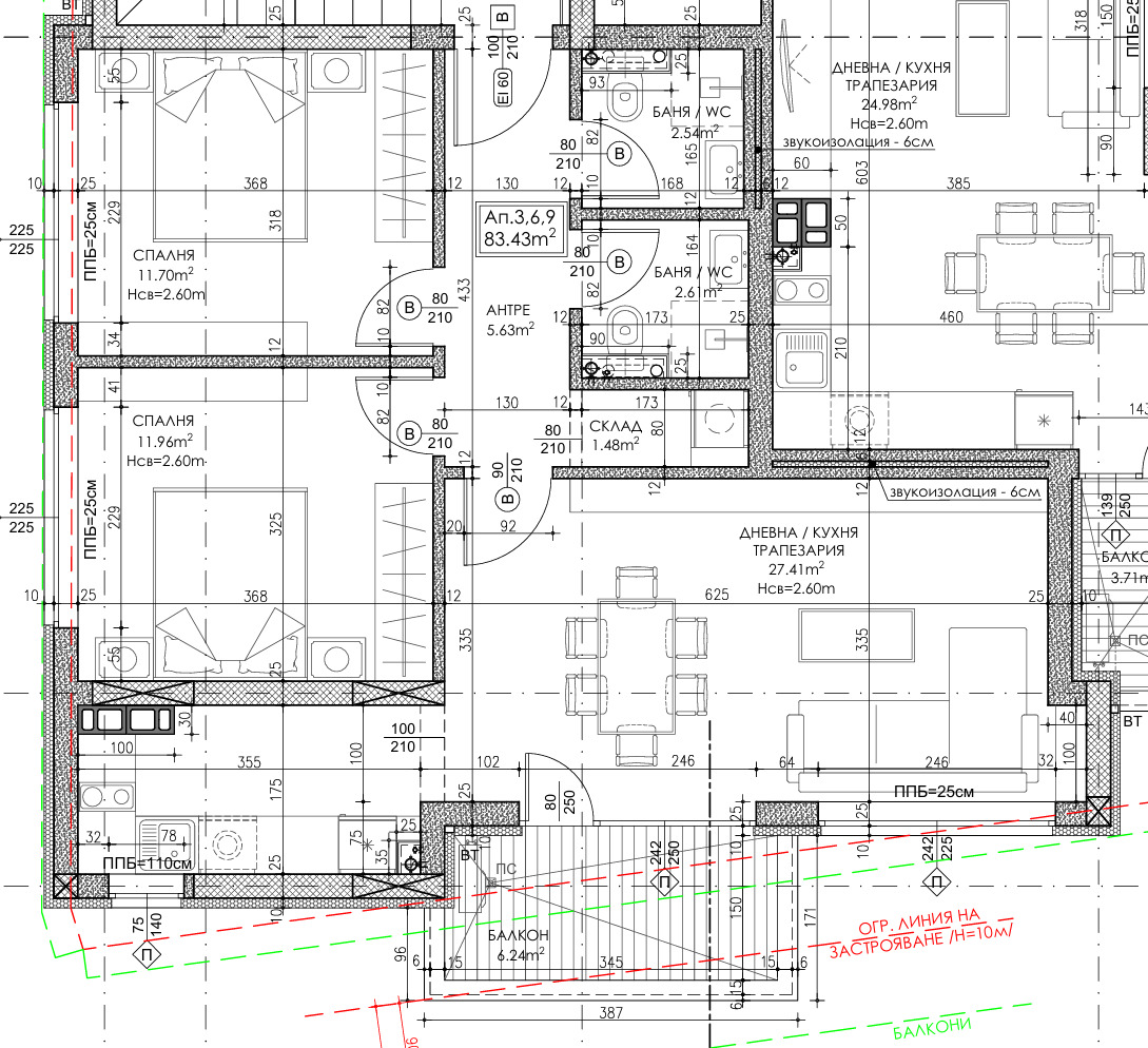
Предлага се за продажба модерен и функционален двустаен апартамент в новострояща се сграда в кв. Левски. Проектът е на етап Акт 15, а издаването на Акт 16 е планирано до края на 2026 г. Имотът е отличен избор за купувачи, които търсят нов дом или сигурна инвестиция в развиващ се район.
🏡 Характеристики на имота апартамент 3
- Площ: 106.4 кв.м
- Разпределение:
- Просторна дневна с кухненски бокс
- Две спални
- Две бани
- Склад
- Балкон
- Светли помещения и съвременно планиране
- Качествено изпълнение и модерна архитектура
🏢 Сграда
- Ново строителство
- Акт 15
- Очакван Акт 16: края на 2026 г.
- Отлична локация с бърз достъп до центъра и ключови пътни артерии
- Спокойна и перспективна жилищна среда
🚗 Паркиране
- Едно паркомясто включено в цената
- Осигурява удобство и сигурност голям плюс за района
💶 Цена
- 216 355 евро
- Цени директно от инвеститор
Този имот е чудесна възможност за купувачи, които търсят комфорт, пространство и стойност в нова сграда с гарантирано паркиране.







