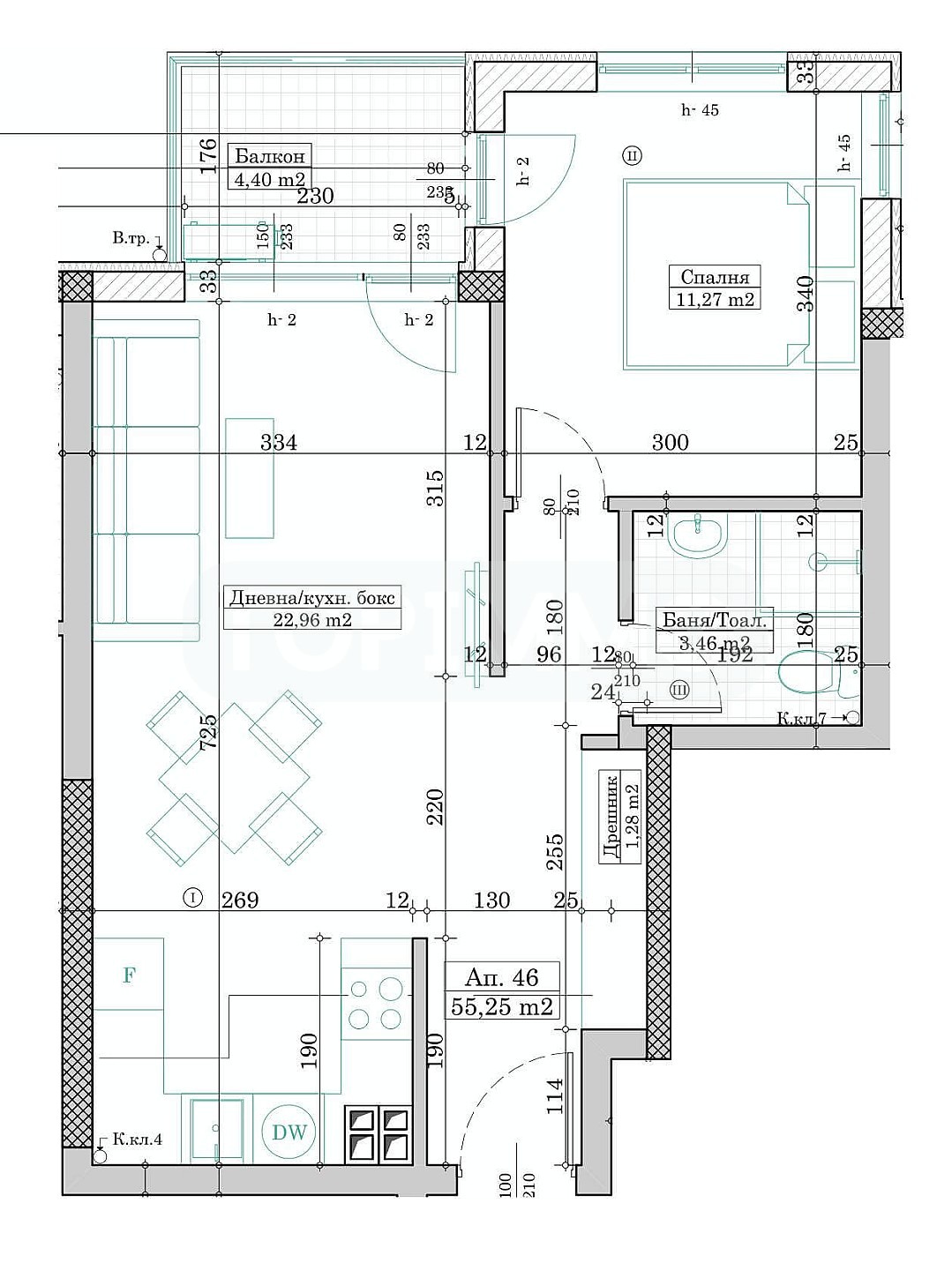
ТОПИММО предлага за продажба двустаен апартамент в нов жилищна сграда пред Акт 14 в квартал Левски. В близост до LIDL и Kaufland, Технически университет, УМБАЛ 'Света Марина'/Терапията/. Луксозно строителство от доказан строител. Отлични размери и разпределения на стаите.
Апартаментът се състои от дневна с кухненски кът, спалня, дрешник, баня с тоалетна, балкон и коридор. Продава се в степен на завършеност по БДС.
Предлага се гъвкава схема на разсрочено плащане.
В сградата са налични за продажба и други апартаменти с различни разпределения, етажи и квадратури.
Има възможност за закупуване на открити и закрити паркоместа.
За повече информация се свържете с нас! Референтен номер: AP-4872







