ИДЕЯ БИЛДИНГС! ПРЕД АКТ 16!
Предлагаме светъл и функционален тристаен апартамент в модерна сграда с предстоящ Акт 16 през месец юни тази година. Разположен в район с отлична инфраструктура и бърз достъп до центъра.
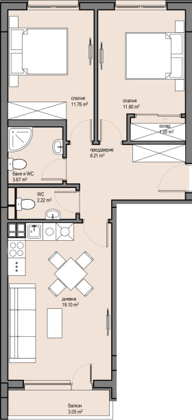
Основни параметри:
Обща площ: 84 кв.м. (ЗП: 73,68 кв.м.)
Етаж: 2/9
Изложение: Югоизток (дневна) / Север (спални)
Отопление: Индивидуално на газ
Състояние: Шпакловка и замазка
Разпределение:
Коридор
Дневна с кухненски бокс
2 спални
2 бани с WC
Тераса
Локация:
На пешеходно разстояние от метростанция Овча купел
В близост до училища, детски градини, МБАЛ Надежда
Бърз достъп до НБУ и СУ
В близост до супермаркети, Holiday park, спортни съоръжения
Сградата е изпълнена с висок клас материали от утвърдени производители и предлага модерна визия и отлично съотношение между качество и цена. Имотът е подходящ както за собствен дом, така и за инвестиция.
За повече информация и организиране на оглед, моля, обадете ни се и цитирайте следния код: 1030



