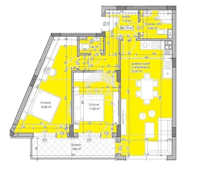
ЕРА Надежда предлага за продажба тристаен апартамент в кв. Обеля 1. Жилището е със застроена площ от 86,73 кв.м. и се състои от хол с кухненски бокс, две спални, антре, баня с тоалетна, отделна тоалетна и балкон.
Сградата разполага още с едностайни, двустайни и тристайни апартаменти, както и с подземни и наземни гаражи и паркоместа. Апартаментите се издават на фина шпакловка, замазка, с включени интериорни врати и входна подсилена врата. Дограмата е висококачествен 4-сезонен дървен стъклопакет.
Сградата е разположена на тихо и спокойно място, в непосредствена близост до метростанция Обеля, спирки на градски транспорт, магазини, аптека, училище, детска градина и много други. При възникнали въпроси и желание за оглед, не се колебайте да ни потърсите!
ЕРА България е лицензиран кредитен посредник към БНБ и осигурява безплатна консултация и преференциални условия при финансиране на своите клиенти.
Оферта 3303683







