Translations in other languages:
All real estate ads published on imot.bg have been translated into English and published on the partner site
Получихте нова обява по филтър





Промяна на цена на наблюдавана обява


стара цена
нова цена
imot.bg – обяви за продажби и наеми на имоти
Сайт за имоти №1
Translations in other languages:
All real estate ads published on imot.bg have been translated into English and published on the partner site
ДОБАВИ ОБЯВА Редакция на обява
Начало Добави обява Търсене Агенции Новини Кредити Вход / Регистрация
Продава 3-СТАЕН
град Варна, Аспарухово
ул. Борис Киряков 4
162 540 €
317 900.61 лв.

(1 642 €, 3 211.47 лв./m2)
Цената е с включено ДДС
История на цената
Публикувана в 15:03 на 26 март, 2026 год.
Обявата е посетена 102 пъти.
Площ:
99 m2
Етаж:
5-ти от 6
Строителство:
Тухла, Ще бъде въведен в експлоатация 2027 г.

Описание на имота:


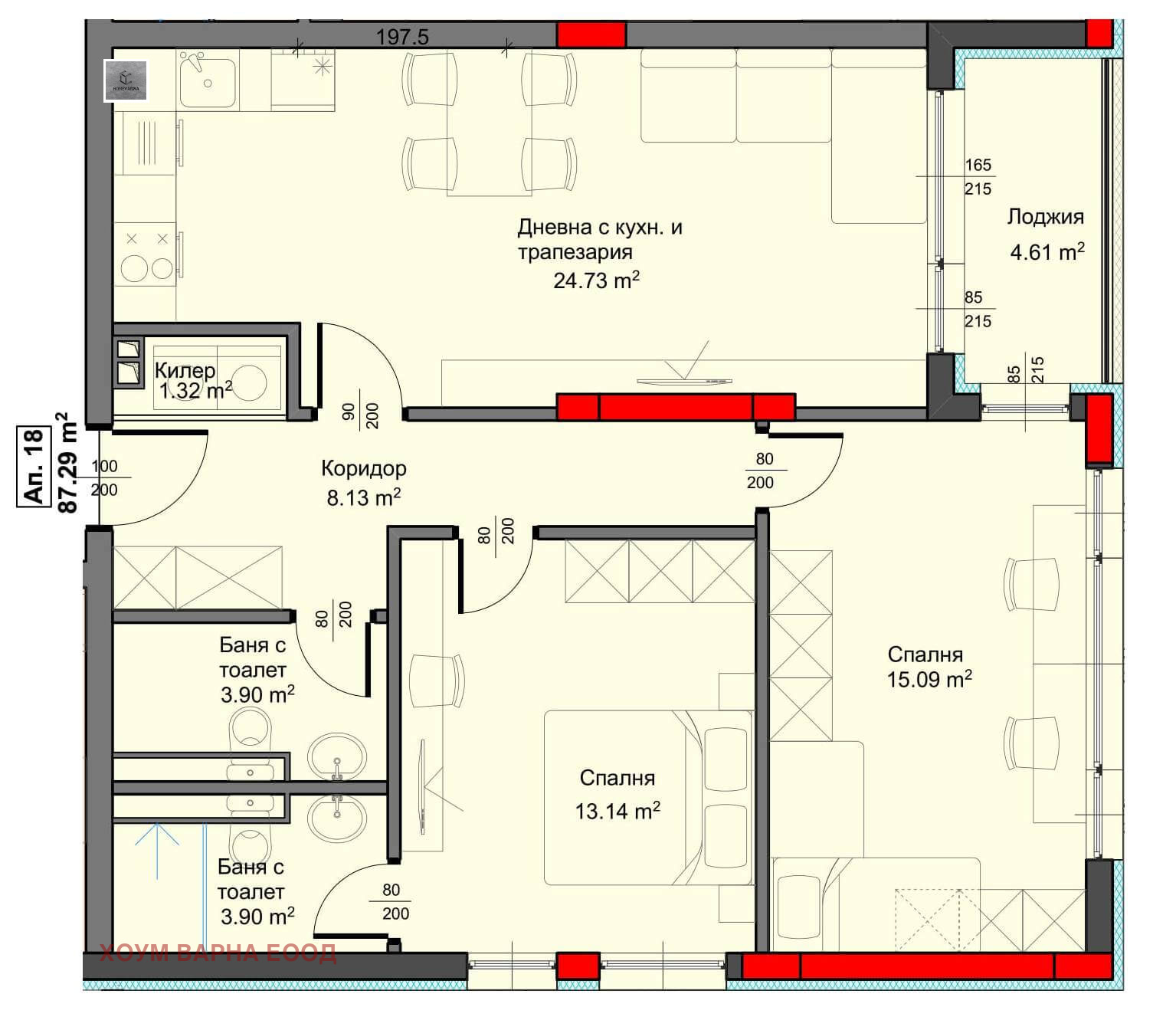
ДИРЕКТНО ОТ ИНВЕСТИТОР! Строителна фирма Хоум Варна ЕООД продава апартаменти и паркоместа в жилищна сграда в кв. Аспарухово, ул. Борис Киряков 4. На шест жилищни етажа са разположени 16 двустайни, 16 тристайни и 1 четиристаен апартаменти. На разположение на живущите ще бъдат 17 подземни и 19 дворни паркоместа. Отличен достъп, улично осветление и страхотна панорама към морето и града. Стартирало строителство. Етапи на завършване: Акт 14: март 2026 г., Акт 15: ноември 2026 г., въвеждане в експлоатация март 2027 г. БЕЗ ТАКСА ПОДДРЪЖКА. Апартаментът A-18 ссе състои от 2 спални, дневна с кухненски бокс и трапезария, 2 бани с тоалетна, килер, коридор и лоджия. Имотът е с обща площ 99,11 кв.м, което включва 87,29 кв.м чиста жилищна площ и 11,82 кв.м общи части. Посочената цена e при схема на плащане 60/30/10. За повече информация: https://homevarna.bg/building/panorama-asparuhovo/
Особености
Тухла
Асансьор
За контакт:
0988989956
Строителна фирма:
ХОУМ ВАРНА ЕООД
0988989956
ХОУМ ВАРНА ЕООД logo
Медал за прослужено време
В imot.bg от 2022 г.
homevarna.imot.bg
Адрес:
област Варна, гр. Варна, ул. Петко Стайнов 5
http://homevarna.bg
ИЗПРАТИ ЗАПИТВАНЕ
ИЗПРАТИ ЗАПИТВАНЕТО

Продава 3-СТАЕН
град Варна, Аспарухово
ул. Борис Киряков 4
Обява: 1c177453018898572

162 540 €
317 900.61 лв.
История на цената
(1 642 €, 3 211.47 лв./m2)

Цената е с включено ДДС
ЗАПАЗИ ОБЯВАТА

Местоположение: град Варна, Аспарухово, ул. Борис Киряков 4

Виж още имоти от Варна или още Тристайни Апартаменти във Варна
Допълнителни данни за имотите в района и сравнение с други райони

Покажи

Период

и 3 месеца

* Средните цени са определени чрез медианна стойност
Още обяви в imot.bg
Обяви за имоти Продажби град Варна Аспарухово Тристайни апартаменти
Въпроси и предложения към imot.bg
КОНТАКТИ | SMS КОДОВЕ | ПОМОЩ | ОБЩИ УСЛОВИЯ | РЕКЛАМА | ЗАЩИТА НА ЛИЧНИТЕ ДАННИ | КАРТА НА САЙТА |
Резон Медия | Автомобили | Работа | Новини | Обяви 2002-2026 ® Copyright imot.bg
© imot.bg ползва и препоръчва хостинг услугите на Bulinfo.net
Следвайте ни в: