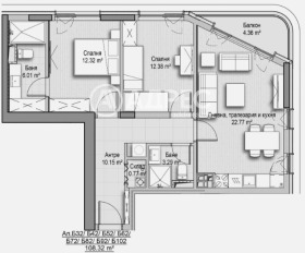
Тристаен апартамент, състоящ се от дневна с кухненски бокс, две спални, две бани с тоалетни, килер и тераса. Опция за закупуване на паркомясто на цена от 35 000 евро.
Затворен жилищен комплекс в квартал Витоша, в близост до бул. Симеоновско шосе .
Нова сграда с разрешение за ползване!
Сграда с разрешение за ползване! Добра локация!
Обади се сега и цитирай този код 623083



