ESTEEM PROPERTIES представя нов мащабен проект в широкия център на гр. Русе - жилище от висок клас, което предефинира понятието за модерен градски лукс, съчетавайки иновативни технологии с безкомпромисно качество на изпълнение.
ПАРАМЕТРИ НА ИМОТА
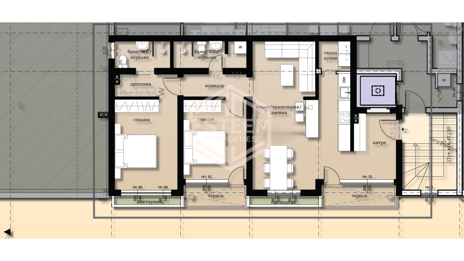
➤ Тип: Просторен тристаен апартамент в модерен жилищен комплекс.
➤ Площ: 124,80 кв.м. обща площ (97,83 кв.м. чиста жилищна площ).
➤ Локация: Стратегическа позиция в широк център - с бърз излаз до основни пътни артерии, в непосредствена близост до елитни училища, големи търговски вериги и обслужващи центрове.
➤ Етап: В процес на активна реализация, с планирано въвеждане в експлоатация през 2027 г.
➤ Допълнителни площи: Към апартамента има прилежащо мазе, включено в крайната цена.
➤ В цената е включен и ГАРАЖ.
ХАРАКТЕРИСТИКИ
➤ Уникално инженерно решение - асансьорът спира директно в самото жилище, осигурявайки пълно уединение и сигурност,
➤ Изцяло положено подово отопление, захранвано от висок клас термопомпа. Тази система гарантира равномерна топлина, изключително ниски енергийни разходи и липса на видими отоплителни тела, което освобождава пространство за интериора.
➤ За имота вече е изготвен професионален интериорен проект. Новите собственици имат възможността да получат дома си напълно завършен до ключ по този проект срещу допълнително заплащане.
АРХИТЕКТУРА И СРЕДА
➤ Светлина и простор: Функционално разпределение с правилни форми и големи прозорци, които осигуряват естествена светлина през целия ден.
➤ Естетика: Сградата се отличава със съвременна архитектура, луксозно изпълнени общи части и богато вертикално озеленяване, което създава хармонична среда за живеене.
ЗАЩО ДА ИНВЕСТИРАТЕ ТУК?
➤ Дългосрочна стойност: Покупка на ' зелено ' в район с постоянен ръст на търсенето и цените.
➤ Бъдещето на дома: Термопомпените системи са най-екологичното и икономично решение за отопление и охлаждане.
БЕЗПЛАТНО СЪДЕЙСТВИЕ ПРИ БАНКОВО ФИНАНСИРАНЕ - Експертна подкрепа при избора на възможности за финансиране и пълно съдействие до финализиране на сделката.
Инвестирайте в бъдещето днес!
За повече информация: тел. 0894997800. Очакваме Ви!







