ДИРЕКТНО ОТ СТРОИТЕЛ ! БЕЗ КОМИСИОННА !
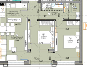
Представяме на вниманието ви тристаен апартамент в нов жилищен комплекс , с най-добрата локация в града / кв.Изток ,срещу Билла /, осигуряваща удобен достъп до основни пътни артерии, търговски обекти, училища и градска инфраструктура.Апартаментът се намира на втори етаж в нова пететажна жилищна сграда и има следното разпределение:просторна всекидневна с трапезария и кухненски бокс, две спални, баня с тоалетна, тоалетна,коридор, склад и тераса.
Жилището се предава в степен на завършеност:
Подове - циментова замазка, стени и тавани - фина машинно положена гипсова мазилка;
Санитарно помещение : под-циментова замазка, стени и таван-вароциментова мазилка;
Прозорци : висок клас PVC профили REHAU, троен стъклопакет / 4 сезона стъкло / ; цвят антрацит;
Външна врата - висок клас , шумо- и топлоизолирана, пожароустойчива;
Тераса - завършена с гранитогрес.
Сградата е монолитна, строителството тухла-енергиен блок, външна топлоизолация 15-18кг/куб., което гарантира енергийната ефективност на сградата; ВиК инсталацията е завършена до тапа, с монтирани водомери; Електро-силнотоковата инсталация е с монтирани висококачествени ел.ключове и оборудвано табло;
Общите части са изпълнени с гранит/гранитогрес, както и силикатна мозаечна мазилка.
Строителната фирма е утвърдена на пазара, с над 15 години опит и високо качество на строителството.
Възможност за закупуване на паркомясто или гараж в сградата !
Изложение: Юг
Застроена площ: 79.55 кв.м.
За повече информация: 0896 826370



