Оферта : 28634
Предлагаме страхотен панорамен апартамент, разположен на последен етаж в северната част на Пловдив квартал Гагарин. Жилището впечатлява със спокойна локация, изцяло южно изложение и красива панорамна гледка, които създават усещане за простор, светлина и комфорт.
Апартаментът е изключително светъл и топъл през цялата година, благодарение на южното изложение, което осигурява много естествена светлина и приятен микроклимат.
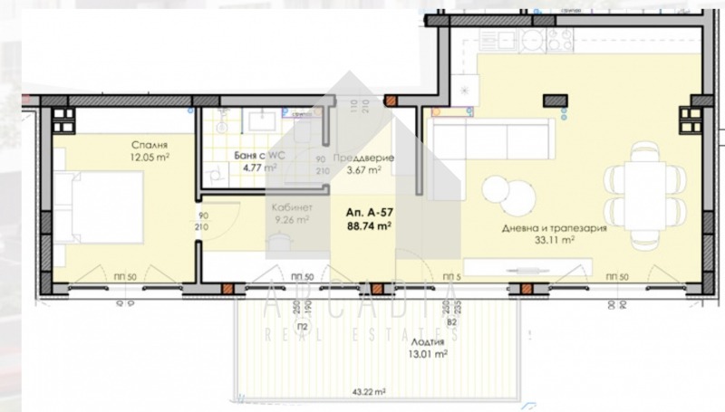
Разпределение: ОГРОМНА ДНЕВНА НАД 33 кв.м, самостоятелна спалня, кабинет, тераса 13 кв.м с прекрасна гледка, баня с тоалетна.
Имот с инвестиционен потенциал или възможност да притежавате един по-различен дом !
За огледи се обадете на 0879 056 441 - ВЕСЕЛА ПОПОВА
Разгледайте и другите ни актуални оферти на WWW.ARCADIAIMOTI.COM







