LUXIMMO FINEST ESTATES: www.luximmo.bg
Представяме нов комфортен тристаен апартамент за продажба, разположен в модерен комплекс в кв. 'Кръстова вада' от малки, нискоетажни сгради. Имотът се намира в непосредствена близост до бул. 'Черни връх' и Околовръстен път, което осигурява бърз достъп до ключови точки в града. Допълнително предимство на локацията е предстоящото изграждане на нов лъч от софийското метро в района, което ще повиши значително транспортната свързаност и стойността на имота. Проектът е създаден за хора, които имат отношение и високи изисквания към средата, в която живеят.
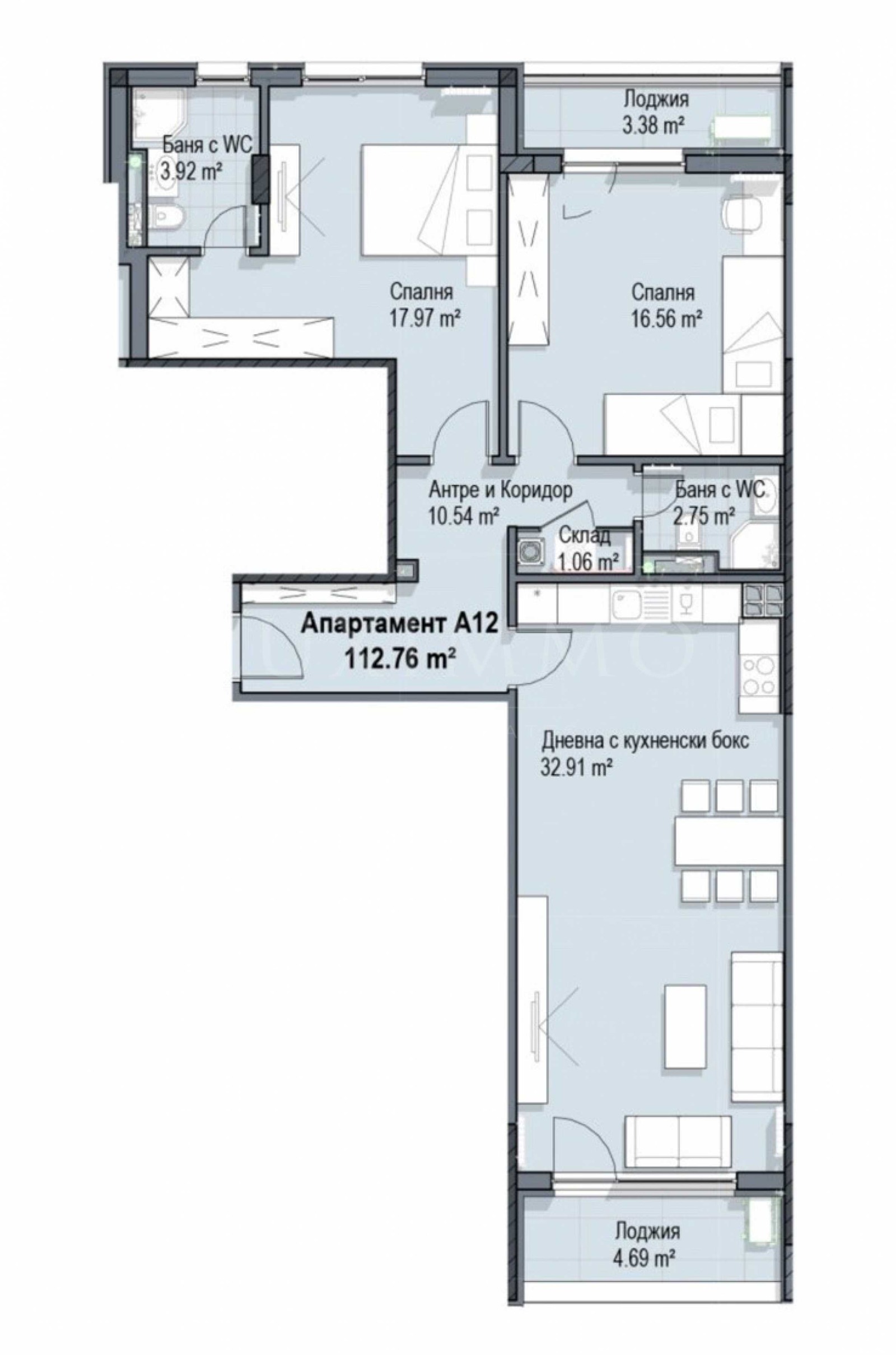
Тристайният апартамент е функционално разпределен и предлага просторни помещения с оптимални форми. Общата площ на жилището е 135.65 кв.м, от които чистата площ е 1112.76 кв.м. Намира се на 5-ти етаж от 7, с изложение юг-север и панорамна гледка към Витоша.
Апартаментът е със следното разпределение:
Хол, трапезария и кухня - 33 кв.м;
Антре 11 кв.м;
Спалня 1 17 кв.м;
Спалня 2 18 кв.м;
Баня с тоалетна към спалня - 3.92 кв.м;
Баня с тоалетна - 3.90 кв.м;
Склад - 1.16 кв.м;
Балкон - 3.20 кв.м;
Лоджия - 4.60 кв.м.
Паркомясто на цена 30 000 евро може да се закупи към имота.
Комплексът предлага голям озеленен двор, детска площадка и атрактивна спортна станция с разнообразие от упражнения.
За повече информация свържете се с нас и цитирайте референтния номер на имота. Моля, кажете, че сте видeли обявата в този сайт.
Референтен номер: SOF-131679
Тел: 0988 170 896, 02 454 13 10
Отговорен брокер:Красимира Апостолова







