Номер на оферта: 620804
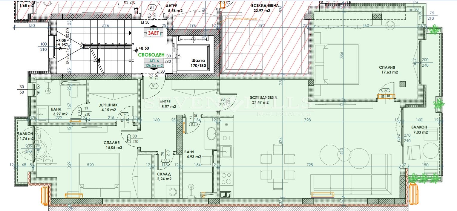
Агенция за недвижими имоти 'Seven Hills' предлага за покупка просторен тристаен апартамент, с чиста площ от 111,34 кв.м.
Намира се в новострояща се сграда, на тиха улица, в непосредствена близост до парк 'Белите Брези', 'Събота' пазар, и на пешеходно разстояние от хранителни магазини, заведения за хранене, детски площадки, училища и детски градини, и спирки на градския транспорт.
Апартаментът е разположен на трети жилищен от общо пет етажа.
Жилището, което представяме има следното разпределение: просторна всекидневна с кухня и трапезария, родителска спалня със собствен санитарен възел и дрешник, втора спалня, втора баня с тоалетна, антре, склад и два балкона, с директен излаз от спалните.
Агенцията предлага различни по големина и разпределение апартаменти в сградата. Имотите в този район са подходящи както за инвестиция, така и за живеене.
Има възможност за закупуване на партерни гаражи - 2000 /кв.м.
За повече информация или оглед се обадете на посочения в обявата телефон за контакт.
Отговорен брокер:
Иван Генев







