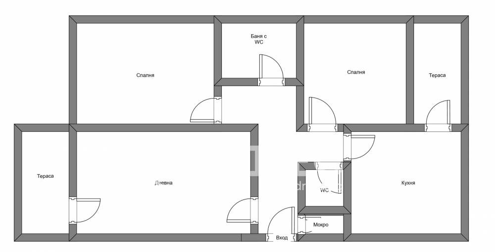
Тристаен, непреходен, просторен и светъл апартамент. Разпределение: голям коридор, хол, две спални, кухня, баня с тоалетна, отделно тоалетна, два големи балкона, прилежащо мазе. Отоплението е на ТЕЦ. Имота е за ремонт с възможност да се преустрой на апартамент с три спални. Свободно паркиране около блока.
В сърцето на кв. Надежда, на 1 мин. от МС 'Надежда', множество магазини.
Панелна сграда от края на 80-те години. Емблематичен блок за Надежда - 'блока с банките'
Локация, метростанция, емблематичен блок, големи квадратури.
Обади се сега и цитирай този код 687836







