RE/MAX River Estate има удоволствието да Ви представи просторен тристаен апартамент, БЕЗ КОМИСИОН ОТ КУПУВАЧА, в новопостроена жилищна сграда с Акт 16, разположена на ул. 19-ти февруари, в централната част на гр. Русе.
Имотът се намира на трети етаж и впечатлява с просторна дневна зона, отлично разпределение и големи прозорци, които осигуряват изобилие от естествена светлина. Архитектурните особености на жилището, включително мансардните прозорци и високото пространство в дневната, създават усещане за простор, уют и индивидуален характер на интериора.
Апартаментът е подходящ както за семейно жилище, така и за инвестиция в централната част на града, където качествените нови имоти са ограничени.
ОБЩА ХАРАКТЕРИСТИКА НА СГРАДАТА
Сградата е реализирана със съвременна архитектурна визия и висок стандарт на изпълнение. Проектът се отличава с качествени материали, модерни фасадни решения и функционално разпределени жилища. Основният акцент е върху енергийната ефективност, комфорта на обитателите и дълготрайността на вложените материали.
Основни предимства на сградата:
- Асансьор KLEEMANN;
- Качествена топло- и хидроизолация;
- Модерна фасада с HPL плоскости;
- Съвременни общи части;
- Контролиран достъп;
- Висок клас PVC дограма REHAU, петкамерна с троен стъклопакет (четири сезона);
- Архитектурният силует на сградата се отличава с изчистени линии и модерна визия, създавайки комфортна и спокойна жилищна среда в централната част на града.
ОБЩА ХАРАКТЕРИСТИКА НА АПАРТАМЕНТА
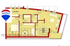
Апартамент 7 е просторен тристаен апартамент с обща площ от 129,26 кв.м. , разположен на трети жилищен етаж, с функционално разпределение и светли помещения.
Имотът е подходящ както за семейства, търсещи комфортен дом в ново строителство, така и за инвестиция в централната част на Русе.
РАЗПРЕДЕЛЕНИЕ
- Просторна дневна с кухненска част с излаз на тераса
- Спалня 1, подходяща за основна спалня
- Спалня 2, подходяща за детска стая, кабинет или гостна
- Баня с тоалетна
- Допълнителен санитарен възел, възможно е да се преустрои и за мокро помещение;
- Коридор / входно антре
- Тераса с достъп от дневната
Допълнително:
Избено помещение 5,47 кв.м.
ТЕХНИЧЕСКИ ХАРАКТЕРИСТИКИ
Жилището се предлага по БДС със следната степен на завършеност:
- Блиндирана входна врата
- Под жилищни помещения циментова замазка
- Стени и тавани варо-циментова мазилка с машинна гипсова шпакловка и една ръка сатен
- Под бани стоманобетонна плоча
- Стени бани варо-циментова мазилка
- Под тераси и балкони студоустойчив гранитогрес
- ВиК инсталация изпълнена до тапа
- Отопление на газ с подготовка за монтаж на радиатори
- PVC дограма REHAU троен стъклопакет (четири сезона)
- Електроинсталация с монтирани ключове и контакти
- Подготовка за бойлери в баните
ЛОКАЦИЯ И ДОСТЪП
Сградата се намира на ул. 19-ти февруари, в централната част на гр. Русе район с отлична инфраструктура и удобен достъп до всички градски удобства. В близост се намират:
- главната пешеходна зона
- административни институции и банки
- магазини и супермаркети
- ресторанти и кафенета
- училища и детски градини
- спирки на градски транспорт
Локацията осигурява удобство в ежедневието и бърз достъп до всички ключови точки на града.
ПРЕДИМСТВА НА ИМОТА
- Просторен тристаен апартамент в нова сграда
- Централна локация
- Функционално разпределение
- Светли помещения и просторна дневна зона
- Висок клас дограма REHAU
- Сграда с асансьор KLEEMANN
- Газификация
- Включено избено помещение
- Подходящ както за живеене, така и за инвестиция
- Без комисион от купувача!
За повече информация и организиране на огледи в удобно за Вас време, свържете се с нас.
RE/MAX съдейства БЕЗПЛАТНО за всякакъв вид кредитиране. Поради факта, че сме в цял свят, нашите клиенти получават преференциални условия от абсолютно всички банки.







