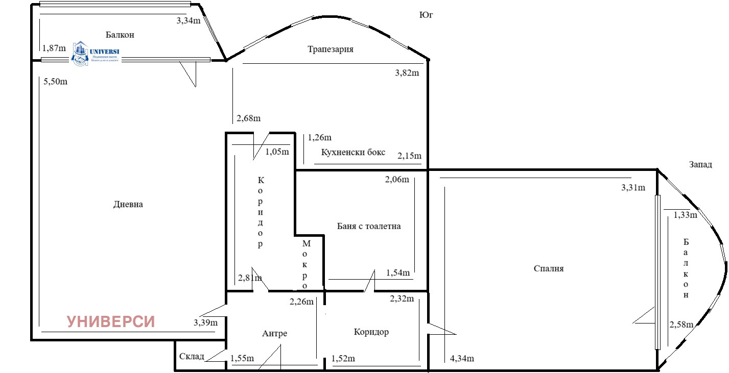
Продаваме просторен, непреходен, двустаен апартамент.
Застроената площ е 85,76м2.
Разпределенеито и големината на помещенията позволяват преустройство в жилище с две спални.
Имотът е вътрешeн, с изложение Юг / Запад.
Отоплението и топлата вода са решени на ток.
Налично е прилежащо мазе, с площ от 5,60м2.
Сградата се намира на ул. Оборище 36 и е с добре поддържани общи части.
Още наши оферти можете да намерите на www.universi.bg

