Оферта 58001669
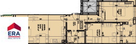
ЕРА Вива предлага за продажба тристаен апартамент с АКТ 14 ( готов за финансиране ) в елегантна сграда в кв. Хр. Смирненски. Общата площ на апартамента е 98.36 кв.м. Жилището се състои от коридор, дневна с трапезария и кухненски бокс, две самостоятелни спални, баня, изба и две тераси. Някои от предимствата на имота са: ? Просторни помещения, правилни форми и оптимално разпределение на застроената площ. ? Изложение: юг-север ? Качествено строителство от доказан изпълнител. ? Нисък процент общи части ? Луксозни общи части и фасади ? Изцяло вътрешен апартамент ? Осигурено над 100% паркирането на добра цена. ? Ниско застрояване. Прекрасната локация на сградата позволява бърз достъп до просторни зелени паркове и е на пешеходно разстояние от Гребната база. В близост са налични кортове и много спортни съоръжения, стадион Пловдив и плувен басейн. С бърз и удобен достъп до централната градска и всички точки на града част на гр. Пловдив с градски транспорт или автомобил. В района също се намират СБЛАГ Селена , УМБАЛ Св. Георги , УМБАЛ Пълмед , МОЛ Пловдив. Имотът е част от нова, малка бутикова сграда, която, съчетава в себе си елегантна архитектура с високо качество на строителство. Сградата е със страхотна локация, ситуирана е в един от най-атрактивните и предпочитани за живеене и инвестиция квартали на Пловдив. Жилището е чудесна инвестиция, както за живеене така и за отдаване под наем.
Инвестицията в недвижим имот е най-сигурният начин да съхраним парите си от инфлационно обезценяване. Направете го сега. ЕРА България е независим кредитен посредник към БНБ и предоставя безплатна консултация и съдействие за най - изгодна оферта спрямо Вашия профил при финансиране на избрания от Вас имот. ЕРА може да договори отлични условия за инвестиционните ви намерения, както и цялостна юридическа проверка на имотите, които предлагаме.







