Просторен тристаен апартамент с тераса 34 кв.м в бутикова сграда кв. Банишора. Без комисион от КУПУВАЧА!
Екипът на YoHоme има удоволствието да ви представи просторен тристаен апартамент с впечатляваща тераса, разположен в модерна бутикова жилищна сграда с елегантна окачена фасада в кв. Банишора.
Сградата е в етап на строителство преди Акт 14, като завършването и получаването на Разрешение за ползване се очаква през лятото на 2027 г. Проектът се отличава с малък брой апартаменти, модерна архитектура и качествено изпълнение, което гарантира спокойна и комфортна жилищна среда.
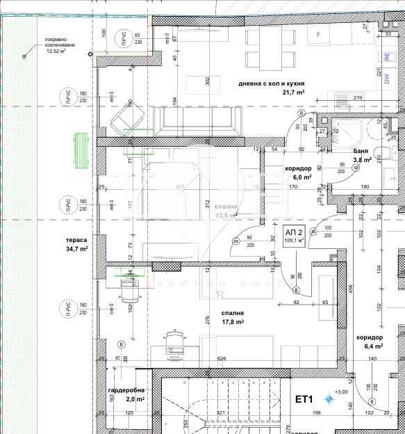
Апартаментът се намира на първи жилищен етаж (над партер) и е с обща площ 131,93 кв.м, от които 109,10 кв.м чиста жилищна площ.
Към имота принадлежи и впечатляваща тераса с площ 34 кв.м, която предоставя отлична възможност за оформяне на зона за отдих, барбекю кът или зелена градска градина рядко предимство за новото строителство в района.
Към апартамента има самостоятелно складово помещение от 3 кв.м, разположено в сутерена на сградата.
Функционално разпределение:
антре
дневна с кухненски бокс
две спални, едната от които има гардеробна
баня с тоалетна
голяма тераса 34 кв.м.
Жилището е с западно изложение, което осигурява приятна светлина и уютна атмосфера в следобедните и вечерните часове.
Сградата се изпълнява с висок клас строителни материали и модерни фасадни решения, гарантиращи енергийна ефективност и дългосрочна стойност на имота.
Има възможност за закупуване на подземно паркомясто към имота.
Локация:
Сградата се намира на тиха уличка, в комуникативна част на кв. Банишора, с бърз достъп до центъра на София. В близост са бул. Христо Ботев и бул. Мария Луиза, метростанции, спирки на градски транспорт, магазини, училища и детски градини. Районът предлага отлична инфраструктура и удобна връзка с всички части на града.
Имотът е отличен избор както за просторен семеен дом, така и за инвестиция в ново строителство в близост до центъра.
За повече информация и организиране на оглед свържете се с нас и цитирайте кода на обявата 77989
Разгледайте и другите ни предложения на страницата ни: www.yohome.bg







