🏡 НОВ ТУХЛЕН АПАРТАМЕНТ В СГРАДА пред АКТ 16 - Май 2026г. с ОТЛИЧНА ЛОКАЦИЯ: Апартаментът се намира в нова сграда, разположена в непосредствена близост до ДГ 99 Брезичка , ДГ 80 Приказна Калина , ДГ 93 Чуден свят , супермаркет Т Маркет и супермаркет Фантастико . Районът е комуникативен, разполага с големи и малки магазини, заведения и спирки на градски транспорт. Не попада в платена зона за паркиране. Бърз и лесен достъп чрез бул. Гоце Делчев, бул. България и ул. Дойран . Предлагаме за продажба тристаен апартамент в новопостроена жилищна сграда отличаваща се с висококачествено строителство и комуникативно местоположение.
✅ Параметри на имота:
Цена: 405 200евро
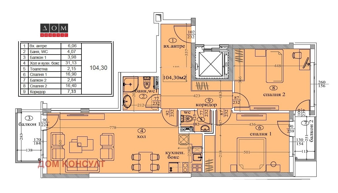
Площ: 123,4кв.м(Застроена площ - 104,3кв.м)
Етаж: 6 от 7;
Изложение: Изток/Запад
Прилежащо помещение: Мазе
Възможност за покупка на гараж от 40000евро
✅ Разпределение:
Входно антре - 6,1кв.м
коридор - 7,33кв.м
Дневна с кухненски бокс - 31,3кв.м
Две Спални по 16,5кв.м
Баня с тоалетна/самостоятелна тоалетна
Два Балкона
🧱 Конструкция и материали:
Тухлени блокове Wienerberger
14 см топлоизолационен слой
Разширена шумоизолация:
между съседни имоти
под подовите замазки
асансьорна шахта и стълбище
🏢 Фасада и общи части:
Окачена вентилируема фасада от HPL плоскости ;
Фоайе по индивидуален дизайнерски проект
Напълно завършени общи части по проект
🛗 Асансьор:
Електрически
Автоматични врати (вътрешни и външни)
Шумоизолиран
⚡ Инсталации:
Електроинсталация:
Трипроводна
Хоризонтална и вертикална разводка
Монтирани ел. табло, ключове и контакти по БДС
Отопление:
Подово отопление
Топлоизточник: ТЕЦ
Колекторна кутия
Индивидуален топломер
ВиК:
Канализация: PVC и PP тръби
Водопровод: изпълнен от полипропилен, завършен на тапа , топлоизолиран
Водомери с радиоотчитане
Климатична система:
Изпълнена разводка за климатик
Без климатици
🪟 Дограма и врати:
PVC дограма петкамерна, min 80 мм профил
Троен стъклопакет с нискоемисийно K стъкло
Външна врата: Метална, H ≥ 210 см, W 100 см
Вътрешни врати: Не са монтирани
📡 Окабеляване:
Интернет: оптичен кабел до апартамента + FTP кабел до всяка стая
Кабелна телевизия
Празен шлаух за телефонна линия
СОТ окабеляване
Домофонна система с видео дисплей
Възможност за покупка чрез жилищен кредит!
Безплатна консултация и съдействие за финансиране на избрания от Вас имот.
Дом Консулт, чрез свои партньори - независими кредитни посредници регистрирани в БНБ предоставяме безплатна консултация и съдействие при финансиране на избрания от Вас имот.
Агенцията съдейства на своите клиенти с юридическа помощ, съдействие за банков кредит и всичко необходимо до успешно приключване на сделката.
ЗА КЛИЕНТИ НА АГЕНЦИЯТА!



