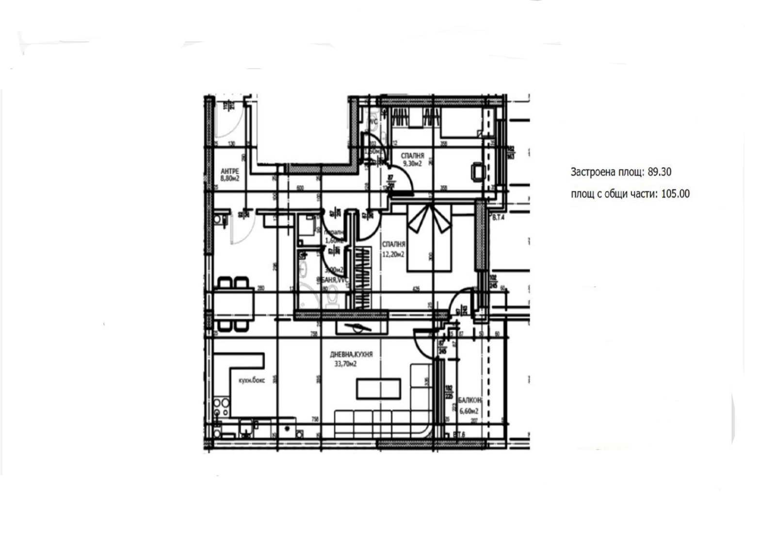
ВЪТРЕШЕН тристаен апартамент в новопостроена сграда пред Акт 15, разположен в предпочитан за живеене район!!! Жилището се състои от ГОЛЯМ хол, две функционални спални, тераса, баня с тоалетна, входно антре и избено помещение. Застроената жилищна площ е 89,30 кв. м. Избеното помещение не е включено в квадратурата. Имота се продава на шпакловка и замазка, с монтирани ключове и контакти, с монтирана PVC дограма и блиндирана входна врата. Изложението е източно. Намира се в близост до детски градини, училища, големи вериги хранителни магазини, паркове и спирки на градския транспорт до всяка точка на града. Акт 16 се очаква лятото на 2026г. Възможност за закупуване на надземни паркоместа и подземни гаражи.
тел.: 0894324220, e-mail: [email protected]




