БИЛДИНГ БОКС предлага за продажба тристаен апартамент, който се намира в новострояща се сграда в гр. София, ж.к. 'Младост 4'.
Схема на плащане: 20% на предварителен договор, 80% на Акт 16.
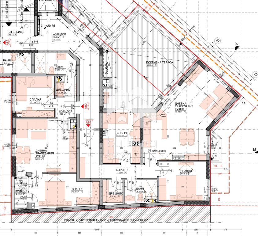
Имотът е със застроената площ е 102.29 кв.м., а разпределението му е както следва: входно антре, дневна с кухненски бокс, две спални, баня с тоалетна, гардеробна и тераса 35 кв.м. с барбекю. Изложението на имота е югоизток и северозапад. Намира се на 8-ми етаж от общо 9. Отоплението е на ТЕЦ.
Жилищен комплекс с търговски площи, ресторант и подземни гаражи, в близост до 'Бизнес Парк София'. Сградата въздейства с иновативен дизайн, модерна фасада и интересни архитектурни решения. Ще предостави комфорт за бъдещите си собственици и всички необходими удобства за днешния градски живот.
При изграждането на проекта са използвани висококачествени материали и технологии.
Сградата е преди Акт 14 и ще бъде завършена 2027 г.
Местоположението на сградата е в непосредствена близост до 'Бизнес Парк София', метростанция 'Бизнес Парк', спирки на градски транспорт, магазини 'Кауфланд', 'Фантастико' и 'Технополис', заведения, детски градини, парк и други. Локацията е в близост до бул. 'Александър Малинов' и Околовръстен път.
БИЛДИНГ БОКС предоставя безплатна консултация и съдействие при финансиране на избрания от Вас имот.
Оферта 30107







